Maison neuve à
Auberville
(14640) Référence :
AC2371679S51_3
Prix du projet : Maison avec Terrain
prix 294 500 €
- 5 pièces
- 4 chambres
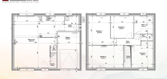
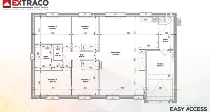
- Surface maison 92 m2
Maison de 5 pièces (92 m²) en vente à Auberville
EMPLACEMENT PRIVILÉGIÉ - MAISON 5 PIÈCES NEUVE
Laissez vous charmer par en vente, bénéficiant d'un emplacement privilégié dans Auberville (14640), cette maison de 5 pièces de plain-pied de 92 m² et de 575 m² de terrain. Son intérieur offre quatre chambres, une cuisine et une salle de bains.
La maison est neuve.
Cette maison est située dans un secteur prisé. On trouve des écoles du primaire et du secondaire à moins de 10 minutes en voiture, tout comme une crèche à moins de 10 minutes à pied. Côté transports, il y a cinq gares à moins de 10 minutes en voiture. L'autoroute A13 est accessible à 9 km. On trouve des bassins de natation, des tennis, quatre bibliothèques, trois ports de plaisance, un bowling, des commerces, des boulangeries, des supermarchés, des bureaux de poste et des boucheries-charcuteries à proximité. 3 marchés animent les environs.
Son prix de vente est de 294 500 €.
Prenez contact avec notre agence (Angélique CUVILLIERS : 07-63-32-12-06) pour toute question sur le bien.
EXTRACO Construction Rénovation Pont-l'Évêque vous accompagne dans toutes vos démarches et dans tous vos projets immobiliers.
Mentions légales
Terrain proposé par un partenaire foncier selon disponibilités et autorisation de publicité au prix de 142 000 €. Hors droit d'enregistrement et frais de notaire. Terrain + Maison proposés au prix de 152 500 € (Hors branchements et raccordements, papiers peints, peintures, revêtement de sol dans les chambres. Tarif modifiable sans préavis). Etiquette énergie : A. Différents modèles disponibles pour ce terrain. Assurances et garanties du constructeur (RC professionnelle, décennale, dommage ouvrage, garantie de remboursement de l'acompte, livraison à prix et délai convenu) : https://www.lesmaisonsextraco.fr/informations-legales/.Agence Maisons Extraco de Pont-l'Évêque (14130)
- Téléphone :
- 02 31 64 00 00
- Adressse :
- 20 rue Hamelin
14130 Pont-l'Évêque, France
