Maison neuve à
Aubevoye
(27940) Référence :
CG2352964_2
Prix du projet : Maison avec Terrain
prix 234 000 €
- 4 pièces
- 3 chambres
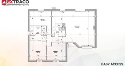
- Surface maison 84 m2
VENTE d'une maison T4 (84 m²) à Aubevoye
IDÉALEMENT SITUÉE - MAISON 4 PIÈCES NEUVE
En vente : à deux pas d'Évreux, Extraco Construction Rénovation Les Andelys vous propose cette maison de 4 pièces de plain-pied de 84 m², idéalement située dans Aubevoye (27940).
Son intérieur se divise en trois chambres, une cuisine et une salle de bains. Cette maison est neuve.
Le terrain de la propriété s'étend sur 600 m².
La maison est située dans un secteur prisé. Il y a des écoles de tous niveaux à moins de 10 minutes à pied, tout comme deux crèches. Niveau transports en commun, on trouve la gare Gaillon-Aubevoye à moins de 10 minutes en voiture. L'autoroute A13 est accessible à 5 km. Il y a une bibliothèque, des commerces, trois boulangeries, un supermarché et un bureau de poste dans les environs.
Elle est à vendre pour la somme de 234 000 €.
Prenez contact avec notre agence (GOITA Carole : 06-50-10-84-99) pour plus de renseignements sur la propriété et sur les modalités de vente. Concrétisez vos projets immobiliers avec Extraco Construction Rénovation Les Andelys.
Mentions légales
Terrain proposé par un partenaire foncier selon disponibilités et autorisation de publicité au prix de 70 000 €. Hors droit d'enregistrement et frais de notaire. Maison proposée, avec un contrat de construction de maison individuelle, dans le cadre de la loi du 19/12/1990, au prix de 164 000 € (Hors branchements et raccordements, papiers peints, peintures, revêtement de sol dans les chambres, qui sont chiffrés dans les travaux qui restent à charge du client. Tarif modifiable sans préavis). Étiquette énergie : A. Différents modèles disponibles pour ce terrain. Assurances et garanties du constructeur comprises (RC professionnelle, décennale, dommage ouvrage).Agence Maisons Extraco de Les Andelys (27700)
- Téléphone :
- 02 32 51 77 46
- Adressse :
- 51 Avenue de la République
27700 Les Andelys, France
