Maison neuve à
Aubevoye
(27940) Référence :
CG2352964_3
Prix du projet : Maison avec Terrain
prix 233 000 €
- 4 pièces
- 3 chambres
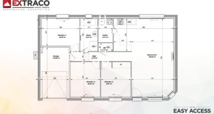
- Surface maison 82 m2
VENTE d'une maison T4 (82 m²) à Aubevoye
IDÉALEMENT SITUÉE - MAISON 4 PIÈCES NEUVE
À vendre : à 23 km d'Évreux, nous sommes heureux de vous proposer cette maison de 4 pièces de plain-pied de 82 m² idéalement située dans Aubevoye (27940).
Elle propose trois chambres, une cuisine et une salle de bains. La maison est neuve.
Le terrain de la propriété s'étend sur 600 m².
Cette maison se situe dans un secteur recherché. Des écoles (de la maternelle au lycée) sont implantées à moins de 10 minutes à pied, tout comme deux crèches. Côté transports en commun, on trouve la gare Gaillon-Aubevoye à moins de 10 minutes en voiture. On trouve un accès à l'autoroute A13 à 5 km. Il y a une bibliothèque, des commerces, trois boulangeries, un supermarché et un bureau de poste à quelques minutes.
Elle est proposée à l'achat pour 233 000 €.
Contactez Carole GOITA (tél : 06-50-10-84-99) pour tout renseignement sur la maison. Extraco Construction Rénovation Les Andelys est là pour vous accompagner dans tous vos projets immobiliers.
Mentions légales
Terrain proposé par un partenaire foncier selon disponibilités et autorisation de publicité au prix de 70 000 €. Hors droit d'enregistrement et frais de notaire. Maison proposée, avec un contrat de construction de maison individuelle, dans le cadre de la loi du 19/12/1990, au prix de 163 000 € (Hors branchements et raccordements, papiers peints, peintures, revêtement de sol dans les chambres, qui sont chiffrés dans les travaux qui restent à charge du client. Tarif modifiable sans préavis). Étiquette énergie : A. Différents modèles disponibles pour ce terrain. Assurances et garanties du constructeur comprises (RC professionnelle, décennale, dommage ouvrage).Agence Maisons Extraco de Les Andelys (27700)
- Téléphone :
- 02 32 51 77 46
- Adressse :
- 51 Avenue de la République
27700 Les Andelys, France
