Maison neuve à
Aubevoye
(27940) Référence :
CG2352964_5
Prix du projet : Maison avec Terrain
prix 253 000 €
- 4 pièces
- 3 chambres
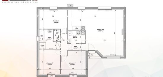
- Surface maison 83 m2
Maison T4 en structure bois (83 m²) à vendre à Aubevoye
IDÉALEMENT SITUÉE - MAISON 4 PIÈCES NEUVE
À vendre : à 23 km d'Évreux, idéalement située dans Aubevoye (27940), votre agence Les Maisons Extraco Les Andelys est ravie de vous proposer cette maison de 4 pièces de plain-pied de 83 m² et de 600 m² de terrain.
Conçue de plain-pied, elle compte trois chambres, une cuisine et une salle de bains. La maison est neuve.
Cette maison se situe dans un quartier convoité. Tous les types d'écoles (maternelle, élémentaire et secondaire) se trouvent à moins de 10 minutes à pied, tout comme deux structures d'accueil pour la petite enfance. Côté transports en commun, il y a la gare Gaillon-Aubevoye à moins de 10 minutes en voiture. Il y a un accès à l'autoroute A13 à 5 km. On trouve une bibliothèque, des commerces, trois boulangeries, un supermarché et un bureau de poste dans les environs.
Son prix de vente est de 253 000 €.
Prenez contact avec Carole GOITA (06-50-10-84-99) pour plus d'informations sur le bien, sur les modalités de vente ou sur les démarches à suivre. Donnez vie à vos projets immobiliers avec Extraco Construction Rénovation Les Andelys.
Mentions légales
Terrain proposé par un partenaire foncier selon disponibilités et autorisation de publicité au prix de 70 000 €. Hors droit d'enregistrement et frais de notaire. Maison proposée, avec un contrat de construction de maison individuelle, dans le cadre de la loi du 19/12/1990, au prix de 183 000 € (Hors branchements et raccordements, papiers peints, peintures, revêtement de sol dans les chambres, qui sont chiffrés dans les travaux qui restent à charge du client. Tarif modifiable sans préavis). Étiquette énergie : A. Différents modèles disponibles pour ce terrain. Assurances et garanties du constructeur comprises (RC professionnelle, décennale, dommage ouvrage).Agence Maisons Extraco de Les Andelys (27700)
- Téléphone :
- 02 32 51 77 46
- Adressse :
- 51 Avenue de la République
27700 Les Andelys, France
