Maison neuve à
Aviron
(27930) Référence :
OS2418164_1
Prix du projet : Maison avec Terrain
prix 244 700 €
- 4 pièces
- 3 chambres
- Surface maison 88 m2
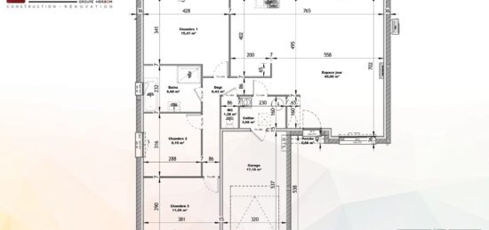
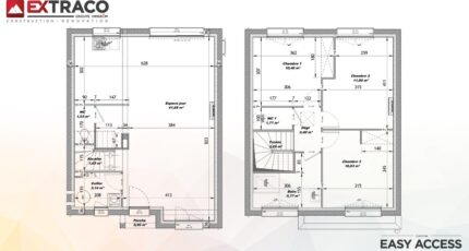
VENTE d'une maison T4 (88 m²) à Aviron
IDÉALEMENT SITUÉE - MAISON 4 PIÈCES NEUVE
En vente : à deux pas d'Évreux, idéalement située dans Aviron (27930), Les Maisons Extraco Gravigny vous présente cette maison de 4 pièces de 88 m². Son intérieur propose trois chambres, une cuisine et une salle de bains.
Le terrain de cette maison est de 1 731 m².
Cette maison possède 2 niveaux. Elle est neuve.
La maison se situe dans un quartier convoité. On y trouve une école primaire. Côté transports en commun, il y a deux gares (Évreux Normandie et La Bonneville-sur-Iton) à moins de 10 minutes en voiture. Les nationales N13 et N154 sont accessibles à moins de 4 km.
Elle est à vendre pour la somme de 244 700 €.
Contactez Oumayma SONMEZ (06-68-92-00-86) pour obtenir de plus amples informations sur la maison ou sur les modalités de vente.
Mentions légales
Terrain proposé par un partenaire foncier selon disponibilités et autorisation de publicité au prix de 92 000 €. Hors droit d'enregistrement et frais de notaire. Terrain + Maison proposés au prix de 244 700 € (Hors branchements et raccordements, papiers peints, peintures, revêtement de sol dans les chambres. Tarif modifiable sans préavis). Etiquette énergie : A. Différents modèles disponibles pour ce terrain. Assurances et garanties du constructeur (RC professionnelle, décennale, dommage ouvrage, garantie de remboursement de l'acompte, livraison à prix et délai convenu) : https://www.lesmaisonsextraco.fr/informations-legales/.Agence Maisons Extraco de Gravigny (27930)
- Téléphone :
- 02 32 31 20 44
- Adressse :
- 165 Avenue Aristide Briand
27930 Gravigny, France
