Maison neuve à
Bacqueville
(27440) Référence :
CG2352907_6
Prix du projet : Maison avec Terrain
prix 309 400 €
- 4 pièces
- 5 chambres
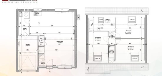
- Surface maison 135 m2
Maison F4 (135 m²) en vente à Bacqueville
EMPLACEMENT PRIVILÉGIÉ - MAISON 4 PIÈCES NEUVE
En vente : à quelques kilomètres de Rouen, votre agence Extraco Construction Rénovation Les Andelys est ravie de vous présenter cette maison de 4 pièces de 135 m² et de 1 400 m² de terrain bénéficiant d'un emplacement privilégié dans Bacqueville (27440).
Il s'agit d'une maison de 2 niveaux. Elle dispose de cinq chambres, d'une cuisine et de deux salles de bains. Cette maison est neuve.
La maison est située dans un secteur prisé. Une école primaire y est implantée. Les autoroutes A13 et A154 sont accessibles à moins de 16 km. Il y a un commerce dans les environs.
Elle est à vendre pour la somme de 309 400 €.
Contactez notre constructeur (GOITA Carole : 06-50-10-84-99) pour plus d'informations sur le bien.
Mentions légales
Terrain proposé par un partenaire foncier selon disponibilités et autorisation de publicité au prix de 59 500 €. Hors droit d'enregistrement et frais de notaire. Maison proposée, avec un contrat de construction de maison individuelle, dans le cadre de la loi du 19/12/1990, au prix de 249 900 € (Hors branchements et raccordements, papiers peints, peintures, revêtement de sol dans les chambres, qui sont chiffrés dans les travaux qui restent à charge du client. Tarif modifiable sans préavis). Étiquette énergie : A. Différents modèles disponibles pour ce terrain. Assurances et garanties du constructeur comprises (RC professionnelle, décennale, dommage ouvrage).Agence Maisons Extraco de Les Andelys (27700)
- Téléphone :
- 02 32 51 77 46
- Adressse :
- 51 Avenue de la République
27700 Les Andelys, France
