Maison neuve à
Bacqueville
(27440) Référence :
CG2352907_7
Prix du projet : Maison avec Terrain
prix 256 400 €
- 5 pièces
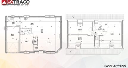
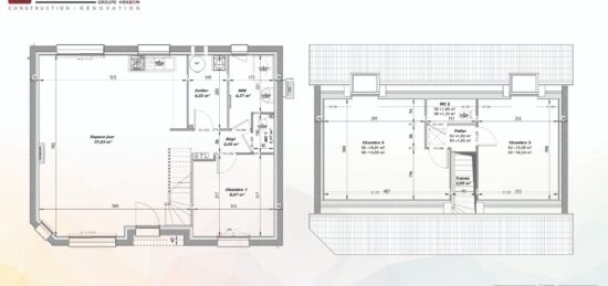
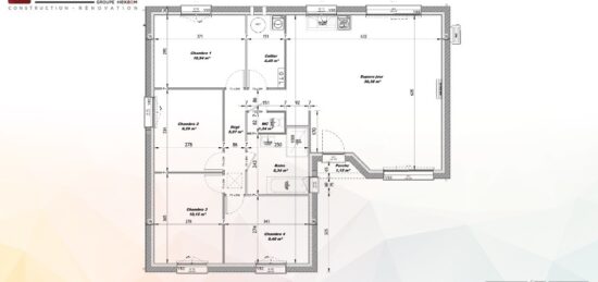
- 4 chambres
- Surface maison 105 m2
Bacqueville : maison F5 (105 m²) à vendre
EMPLACEMENT PRIVILÉGIÉ - MAISON 5 PIÈCES NEUVE
À vendre à quelques kilomètres de Rouen, nous vous proposons cette maison de 5 pièces de 105 m² et de 1 400 m² de terrain bénéficiant d'un emplacement privilégié dans Bacqueville (27440). Elle est composée de quatre chambres, d'une cuisine et de deux salles de bains.
Cette maison possède 2 niveaux. Elle est neuve.
Cette maison est située dans un quartier prisé. On y trouve une école primaire. Les autoroutes A13 et A154 sont accessibles à moins de 16 km. Il y a un commerce à proximité.
Son prix de vente est de 256 400 €.
Contactez notre agence (Carole GOITA : 06-50-10-84-99) pour obtenir de plus amples informations sur la maison. Donnez vie à vos projets immobiliers avec Extraco Construction Rénovation Les Andelys.
Mentions légales
Terrain proposé par un partenaire foncier selon disponibilités et autorisation de publicité au prix de 59 500 €. Hors droit d'enregistrement et frais de notaire. Maison proposée, avec un contrat de construction de maison individuelle, dans le cadre de la loi du 19/12/1990, au prix de 196 900 € (Hors branchements et raccordements, papiers peints, peintures, revêtement de sol dans les chambres, qui sont chiffrés dans les travaux qui restent à charge du client. Tarif modifiable sans préavis). Étiquette énergie : A. Différents modèles disponibles pour ce terrain. Assurances et garanties du constructeur comprises (RC professionnelle, décennale, dommage ouvrage).Agence Maisons Extraco de Les Andelys (27700)
- Téléphone :
- 02 32 51 77 46
- Adressse :
- 51 Avenue de la République
27700 Les Andelys, France
