Maison neuve à
Bailleul-Neuville
(76660) Référence :
SE2439164_2
Prix du projet : Maison avec Terrain
prix 171 850 €
- 4 pièces
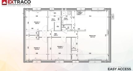
- 3 chambres
- Surface maison 80 m2
Maison de 4 pièces (80 m²) à vendre à Bailleul-Neuville
IDÉALEMENT SITUÉE - MAISON 4 PIÈCES NEUVE
À vendre : localisée à 29 km de la Manche et à deux pas de Dieppe, laissez vous charmer par cette maison de 4 pièces de plain-pied de 80 m² idéalement située dans Bailleul-Neuville (76660). Elle offre trois chambres, une cuisine et une salle de bains.
Le terrain de la maison s'étend sur 1 045 m².
Cette maison est neuve.
Cette maison se trouve dans un secteur recherché. Une école élémentaire y est implantée.
Son prix de vente est de 171 850 €.
Prenez contact avec notre agence Slimane ELHLOU pour toute information sur le bien ou sur les démarches à suivre.
Mentions légales
Terrain proposé par un partenaire foncier selon disponibilités et autorisation de publicité au prix de 45 000 €. Hors droit d'enregistrement et frais de notaire. Terrain + Maison proposés au prix de 171 850 € (Hors branchements et raccordements, papiers peints, peintures, revêtement de sol dans les chambres. Tarif modifiable sans préavis). Etiquette énergie : A. Différents modèles disponibles pour ce terrain. Assurances et garanties du constructeur (RC professionnelle, décennale, dommage ouvrage, garantie de remboursement de l'acompte, livraison à prix et délai convenu) : https://www.lesmaisonsextraco.fr/informations-legales/.Agence Maisons Extraco de Dieppe (76200)
- Téléphone :
- 02 35 06 07 50
- Adressse :
- 78 rue de la Barre
76200 Dieppe, France
