Maison neuve à
Bazemont
(78580) Référence :
MK2406988_4
Prix du projet : Maison avec Terrain
prix 792 800 €
- 6 pièces
- 5 chambres
- Surface maison 179 m2
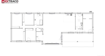
VENTE d'une maison T6 (179 m²) à Bazemont
EMPLACEMENT PRIVILÉGIÉ - MAISON 6 PIÈCES NEUVE
Au pied du Transilien N (gare de Maule, 60 min de Paris), en vente bénéficiant d'un emplacement privilégié dans Bazemont (78580), venez découvrir cette maison de 6 pièces de plain-pied de 179 m² et de 2 898 m² de terrain. Elle dispose de cinq chambres, d'une cuisine et d'une salle de bains.
La maison est neuve.
Ce bien est situé dans un secteur recherché. On y trouve une école primaire. Niveau transports en commun, il y a 14 gares à moins de 10 minutes en voiture. On trouve un tennis, une bibliothèque et un commerce à proximité.
Il est proposé à l'achat pour 792 800 €.
Contactez notre agence (KUD Morgane : 06-28-09-98-57) pour toute question sur la maison.
Mentions légales
Terrain proposé par un partenaire foncier selon disponibilités et autorisation de publicité au prix de 390 000 €. Hors droit d'enregistrement et frais de notaire. Terrain + Maison proposés au prix de 402 800 € (Hors branchements et raccordements, papiers peints, peintures, revêtement de sol dans les chambres. Tarif modifiable sans préavis). Etiquette énergie : A. Différents modèles disponibles pour ce terrain. Assurances et garanties du constructeur (RC professionnelle, décennale, dommage ouvrage, garantie de remboursement de l'acompte, livraison à prix et délai convenu) : https://www.lesmaisonsextraco.fr/informations-legales/.Agence Maisons Extraco de Chambourcy (78240)
- Téléphone :
- 01 30 65 11 55
- Adressse :
- Boulevard de la Renaissance
78240 Chambourcy, France
