Maison neuve à
Beaussault
(76870) Référence :
SE2350465_3
Prix du projet : Maison avec Terrain
prix 253 300 €
- 4 pièces
- 3 chambres
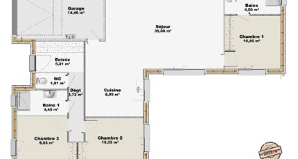
- Surface maison 94 m2
VENTE : maison de 4 pièces (94 m²) à Beaussault
MAISON 4 PIÈCES NEUVE
À vendre à 47 km de la Manche, votre agence Les Maisons Extraco Dieppe est heureuse de vous proposer à Beaussault (76870), cette maison de 4 pièces de plain-pied de 94 m² et de 1 634 m² de terrain.
Conçue de plain-pied, elle comporte trois chambres, une cuisine et deux salles de bains. Cette maison est neuve.
Il y a une école maternelle dans le quartier. Côté transports en commun, on trouve la gare Serqueux à moins de 10 minutes en voiture. Les autoroutes A29 et A28 sont accessibles à moins de 10 km.
Elle est proposée à l'achat pour 253 300 €.
Contactez notre agence (Slimane ELHLOU : 06-17-96-02-17) pour toute information sur la maison ou sur les démarches à suivre.
Mentions légales
Terrain proposé par un partenaire foncier selon disponibilités et autorisation de publicité au prix de 49 000 €. Hors droit d'enregistrement et frais de notaire. Maison proposée, avec un contrat de construction de maison individuelle, dans le cadre de la loi du 19/12/1990, au prix de 204 300 € (Hors branchements et raccordements, papiers peints, peintures, revêtement de sol dans les chambres, qui sont chiffrés dans les travaux qui restent à charge du client. Tarif modifiable sans préavis). Étiquette énergie : A. Différents modèles disponibles pour ce terrain. Assurances et garanties du constructeur comprises (RC professionnelle, décennale, dommage ouvrage).Agence Maisons Extraco de Dieppe (76200)
- Téléphone :
- 02 35 06 07 50
- Adressse :
- 78 rue de la Barre
76200 Dieppe, France
