Maison neuve à
Bouelles
(76270) Référence :
SE2446374_1
Prix du projet : Maison avec Terrain
prix 183 470 €
- 5 pièces
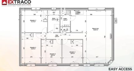
- 4 chambres
- Surface maison 95 m2
Bouelles : maison T5 (95 m²) à vendre
IDÉALEMENT SITUÉE - MAISON 5 PIÈCES NEUVE
À vendre à 41 km de la Manche, notre agence Les Maisons Extraco Dieppe est heureuse de vous présenter cette maison de 5 pièces de plain-pied de 95 m², idéalement située dans Bouelles (76270). Elle inclut quatre chambres, une cuisine et une salle de bains.
Le terrain de cette maison s'étend sur 1 256 m².
La maison est neuve.
Cette maison se trouve dans un quartier prisé. On y trouve une école élémentaire. Niveau transports, il y a la gare Serqueux à moins de 10 minutes en voiture.
Elle est à vendre pour la somme de 183 470 €.
N'hésitez pas à prendre contact avec Slimane ELHLOU pour toute question sur le bien ou sur les modalités de vente. Les Maisons Extraco Dieppe vous accompagne dans toutes vos démarches et dans tous vos projets immobiliers.
Mentions légales
Terrain proposé par un partenaire foncier selon disponibilités et autorisation de publicité au prix de 45 500 €. Hors droit d'enregistrement et frais de notaire. Terrain + Maison proposés au prix de 183 470 € (Hors branchements et raccordements, papiers peints, peintures, revêtement de sol dans les chambres. Tarif modifiable sans préavis). Etiquette énergie : A. Différents modèles disponibles pour ce terrain. Assurances et garanties du constructeur (RC professionnelle, décennale, dommage ouvrage, garantie de remboursement de l'acompte, livraison à prix et délai convenu) : https://www.lesmaisonsextraco.fr/informations-legales/.Agence Maisons Extraco de Dieppe (76200)
- Téléphone :
- 02 35 06 07 50
- Adressse :
- 78 rue de la Barre
76200 Dieppe, France
