Maison neuve à
Boulleville
(27210) Référence :
JP2352718_1
Prix du projet : Maison avec Terrain
prix 212 500 €
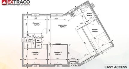
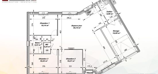
- 4 pièces
- 3 chambres
- Surface maison 85 m2
Boulleville : maison de 4 pièces (85 m²) en vente
EMPLACEMENT PRIVILÉGIÉ - MAISON 4 PIÈCES NEUVE
En vente : à 8 km de la Manche et à quelques kilomètres du Havre, nous vous proposons cette maison de 4 pièces de plain-pied de 85 m², bénéficiant d'un emplacement d'exception dans Boulleville (27210). Elle comporte trois chambres, une cuisine et une salle de bains.
Le terrain de la maison est de 947 m².
Cette maison est neuve.
La maison se situe dans un secteur convoité. Une école élémentaire y est implantée. Les autoroutes A13 et A29 sont accessibles à moins de 10 km. Il y a un tennis et un commerce à proximité.
Son prix de vente est de 212 500 €.
N'hésitez pas à prendre contact avec Juliette PETIT (06-66-70-24-56) pour toute information sur la propriété ou sur les modalités de vente.
Mentions légales
Terrain proposé par un partenaire foncier selon disponibilités et autorisation de publicité au prix de 69 500 €. Hors droit d'enregistrement et frais de notaire. Maison proposée, avec un contrat de construction de maison individuelle, dans le cadre de la loi du 19/12/1990, au prix de 143 000 € (Hors branchements et raccordements, papiers peints, peintures, revêtement de sol dans les chambres, qui sont chiffrés dans les travaux qui restent à charge du client. Tarif modifiable sans préavis). Étiquette énergie : A. Différents modèles disponibles pour ce terrain. Assurances et garanties du constructeur comprises (RC professionnelle, décennale, dommage ouvrage).Agence Maisons Extraco de Pont-Audemer (27500)
- Téléphone :
- 02 32 41 95 72
- Adressse :
- 50 rue de la République
27500 Pont-Audemer, France
