Maison neuve à
Bréauté
(76110) Référence :
SL-yvetotbreaute48_4
Prix du projet : Maison avec Terrain
prix 270 260 €
- 4 pièces
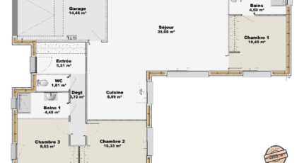
- 3 chambres
- Surface maison 94 m2
A construire: maison T4 (94 m²) à Bréauté
CENTRE-VILLE - MAISON 4 PIÈCES NEUVE
À quelques kilomètres du Havre, votre agence Extraco construction rénovation Yvetot est heureuse de vous proposer cette maison de 4 pièces de plain-pied de 94 m² et de 518 m² de terrain, dans le centre de Bréauté (76110).
Conçue de plain-pied, elle propose trois chambres, une cuisine et deux salles de bains. La maison est neuve.
L'École Primaire Henri Blanc et l'École Primaire Privée Notre-Dame sont implantées à moins de 10 minutes à pied. Côté transports en commun, on trouve quatre gares à moins de 10 minutes en voiture. On trouve un accès à l'autoroute A29 à 6 km. Il y a une boulangerie et une boucherie-charcuterie à quelques minutes du logement.
Elle est à vendre pour la somme de 270 260 €.
Contactez notre constructeur (Sébastien LENFANT : 06-66-42-53-33) pour toute question sur la maison, sur les modalités de vente ou sur les démarches à suivre. Donnez vie à vos projets immobiliers avec Extraco construction rénovation Yvetot.
Mentions légales
Terrain proposé par un partenaire foncier selon disponibilités et autorisation de publicité au prix de 67 000 €. Hors droit d'enregistrement et frais de notaire. Maison proposée, avec un contrat de construction de maison individuelle, dans le cadre de la loi du 19/12/1990, au prix de 203 260 € (Hors branchements et raccordements, papiers peints, peintures, revêtement de sol dans les chambres, qui sont chiffrés dans les travaux qui restent à charge du client. Tarif modifiable sans préavis). Étiquette énergie : A. Différents modèles disponibles pour ce terrain. Assurances et garanties du constructeur comprises (RC professionnelle, décennale, dommage ouvrage).Agence Maisons Extraco de Yvetot (76190)
- Téléphone :
- 02 35 56 53 46
- Adressse :
- Avenue du Général Leclerc
76190 Yvetot, France
