Maison neuve à
Bréauté
(76110) Référence :
BP-HAVRE-sem52-46_3
Prix du projet : Maison avec Terrain
prix 239 000 €
- 4 pièces
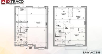
- 3 chambres
- Surface maison 88 m2
VENTE d'une maison T4 (88 m²) à Bréauté
MAISON 4 PIÈCES NEUVE - PROCHE DU HAVRE
En vente : localisée à 16 km de la Manche et à deux pas du Havre, votre agence Les Maisons Extraco Le Havre est ravie de vous présenter cette maison de 4 pièces de 88 m² à Bréauté (76110).
Cette maison comporte 2 niveaux. Son intérieur comporte trois chambres, une cuisine et une salle de bains. La maison est neuve.
Le terrain du bien est de 642 m².
L'École Primaire Henri Blanc et l'École Primaire Privée Notre-Dame sont implantées à moins de 10 minutes à pied. Niveau transports en commun, on trouve quatre gares à moins de 10 minutes en voiture. Il y a un accès à l'autoroute A29 à 6 km. Il y a une boulangerie et une boucherie-charcuterie à quelques minutes.
Son prix de vente est de 239 000 €.
Contactez notre agence (PELLETER Barbara : 06-25-73-10-44) pour toute question sur cette maison ou sur les modalités de vente. Les Maisons Extraco Le Havre vous accompagne dans tous vos projets immobiliers et à toutes les étapes de votre projet.
Mentions légales
Terrain proposé par un partenaire foncier selon disponibilités et autorisation de publicité au prix de 69 000 €. Hors droit d'enregistrement et frais de notaire. Terrain + Maison proposés au prix de 170 000 € (Hors branchements et raccordements, papiers peints, peintures, revêtement de sol dans les chambres. Tarif modifiable sans préavis). Etiquette énergie : A. Différents modèles disponibles pour ce terrain. Assurances et garanties du constructeur (RC professionnelle, décennale, dommage ouvrage, garantie de remboursement de l'acompte, livraison à prix et délai convenu) : https://www.lesmaisonsextraco.fr/informations-legales/.Agence Maisons Extraco de Le Havre (76600)
- Téléphone :
- 02 35 21 53 46
- Adressse :
- 110 rue de Paris
76600 Le Havre, France
