Maison neuve à
Buchy
(76750) Référence :
AR2325470_6
Prix du projet : Maison avec Terrain
prix 225 000 €
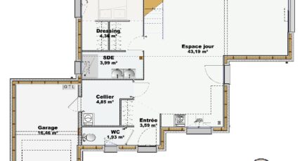
- 6 pièces
- 5 chambres
- Surface maison 114 m2
À BUCHY, terrain constructible à acheter.
Sur la commune de BUCHY, opportunité à saisir avec ce terrain.
Vous pourrez exploiter une surface de 771 m2 pour créer votre future maison.
N'hésitez pas à contacter Alexis RINGOT (06.02.72.20.36) des Maisons Extraco Les Essarts si vous avez des questions.
Premiers échanges par SMS ou mail possible.
RINGOT Alexis
06.02.72.20.36
a.ringot at extraco.fr
Mentions légales
Terrain proposé par un partenaire foncier selon disponibilités et autorisation de publicité au prix de 55 000 €. Hors droit d'enregistrement et frais de notaire. Maison proposée, avec un contrat de construction de maison individuelle, dans le cadre de la loi du 19/12/1990, au prix de 170 000 € (Hors branchements et raccordements, papiers peints, peintures, revêtement de sol dans les chambres, qui sont chiffrés dans les travaux qui restent à charge du client. Tarif modifiable sans préavis). Étiquette énergie : A. Différents modèles disponibles pour ce terrain. Assurances et garanties du constructeur comprises (RC professionnelle, décennale, dommage ouvrage).Agence Maisons Extraco de Grand-Couronne (76530)
- Téléphone :
- 02 35 67 20 76
- Adressse :
- 3 rue de la Scierie
76530 Grand-Couronne, France
