Maison neuve à
Callengeville
(76270) Référence :
SE2439145_1
Prix du projet : Maison avec Terrain
prix 173 000 €
- 5 pièces
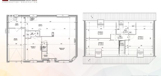
- 4 chambres
- Surface maison 114 m2
Callengeville : maison T5 (114 m²) en vente
IDÉALEMENT SITUÉE - MAISON 5 PIÈCES NEUVE
En vente à 32 km de la Manche, notre agence Les Maisons Extraco Dieppe est ravie de vous proposer cette maison de 5 pièces de plain-pied de 114 m² et de 1 009 m² de terrain idéalement située dans Callengeville (76270).
Son intérieur se divise en quatre chambres, une cuisine et une salle de bains. La maison est neuve.
Cette maison se situe dans un secteur convoité. L'École Primaire Antoine de Saint-Exupéry est implantée à moins de 10 minutes à pied. Il y a un tennis à quelques minutes.
Elle est proposée à l'achat pour 173 000 €.
Contactez notre constructeur Slimane ELHLOU pour obtenir de plus amples informations sur la propriété ou sur les modalités de vente. Faites de vos projets immobiliers une réalité avec Les Maisons Extraco Dieppe.
Mentions légales
Terrain proposé par un partenaire foncier selon disponibilités et autorisation de publicité au prix de 19 000 €. Hors droit d'enregistrement et frais de notaire. Terrain + Maison proposés au prix de 173 000 € (Hors branchements et raccordements, papiers peints, peintures, revêtement de sol dans les chambres. Tarif modifiable sans préavis). Etiquette énergie : A. Différents modèles disponibles pour ce terrain. Assurances et garanties du constructeur (RC professionnelle, décennale, dommage ouvrage, garantie de remboursement de l'acompte, livraison à prix et délai convenu) : https://www.lesmaisonsextraco.fr/informations-legales/.Agence Maisons Extraco de Dieppe (76200)
- Téléphone :
- 02 35 06 07 50
- Adressse :
- 78 rue de la Barre
76200 Dieppe, France
