Maison neuve à
Callengeville
(76270) Référence :
SE2439145_3
Prix du projet : Maison avec Terrain
prix 129 250 €
- 3 pièces
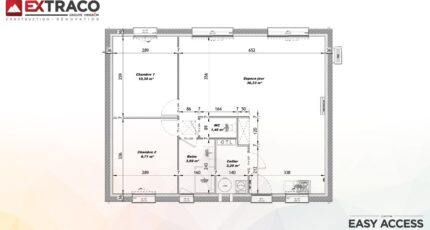
- 2 chambres
- Surface maison 65 m2
VENTE : maison de 3 pièces (65 m²) à Callengeville
IDÉALEMENT SITUÉE - MAISON 3 PIÈCES NEUVE
À vendre : à 32 km de la Manche, notre agence Les Maisons Extraco Dieppe est ravie de vous proposer, idéalement située dans Callengeville (76270), cette maison de 3 pièces de plain-pied de 65 m².
Elle compte deux chambres, une cuisine et une salle de bains. La maison est neuve.
Le terrain du bien s'étend sur 1 009 m².
Cette maison se trouve dans un secteur recherché. Il y a l'École Primaire Antoine de Saint-Exupéry à moins de 10 minutes à pied. On trouve un tennis dans les environs.
Son prix de vente est de 129 250 €.
N'hésitez pas à prendre contact avec Slimane ELHLOU pour obtenir de plus amples renseignements sur la maison, sur les modalités de vente ou sur les démarches à suivre. Les Maisons Extraco Dieppe est là pour vous accompagner dans tous vos projets immobiliers.
Mentions légales
Terrain proposé par un partenaire foncier selon disponibilités et autorisation de publicité au prix de 19 000 €. Hors droit d'enregistrement et frais de notaire. Terrain + Maison proposés au prix de 129 250 € (Hors branchements et raccordements, papiers peints, peintures, revêtement de sol dans les chambres. Tarif modifiable sans préavis). Etiquette énergie : A. Différents modèles disponibles pour ce terrain. Assurances et garanties du constructeur (RC professionnelle, décennale, dommage ouvrage, garantie de remboursement de l'acompte, livraison à prix et délai convenu) : https://www.lesmaisonsextraco.fr/informations-legales/.Agence Maisons Extraco de Dieppe (76200)
- Téléphone :
- 02 35 06 07 50
- Adressse :
- 78 rue de la Barre
76200 Dieppe, France
