Maison neuve à
Cambremer
(14340) Référence :
MP2375108_2
Prix du projet : Maison avec Terrain
prix 242 000 €
- 5 pièces
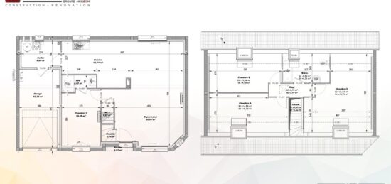
- 4 chambres
- Surface maison 92 m2
VENTE d'une maison de 5 pièces (92 m²) à Cambremer
EMPLACEMENT PRIVILÉGIÉ - MAISON 5 PIÈCES NEUVE
En vente : à 21 km de la Manche, laissez vous charmer par cette maison de 5 pièces de plain-pied de 92 m² bénéficiant d'un emplacement privilégié dans Cambremer (14340).
Son intérieur compte quatre chambres, une cuisine et une salle de bains. La maison est neuve.
Le terrain de la propriété est de 775 m².
Ce bien se trouve dans un secteur convoité. L'École Primaire Victor Hugo est implantée à moins de 10 minutes à pied. Les autoroutes A13 et A132 sont accessibles à moins de 20 km. On trouve une bibliothèque, un tennis, deux commerces, une boulangerie, un bureau de poste, trois épiceries et une boucherie-charcuterie dans les environs.
Son prix de vente est de 242 000 €.
Contactez Marion PAIN (06-67-04-73-85) pour obtenir de plus amples renseignements sur la maison.
Mentions légales
Terrain proposé par un partenaire foncier selon disponibilités et autorisation de publicité au prix de 75 000 €. Hors droit d'enregistrement et frais de notaire. Terrain + Maison proposés au prix de 167 000 € (Hors branchements et raccordements, papiers peints, peintures, revêtement de sol dans les chambres. Tarif modifiable sans préavis). Etiquette énergie : A. Différents modèles disponibles pour ce terrain. Assurances et garanties du constructeur (RC professionnelle, décennale, dommage ouvrage, garantie de remboursement de l'acompte, livraison à prix et délai convenu) : https://www.lesmaisonsextraco.fr/informations-legales/.Agence Maisons Extraco de Pont-l'Évêque (14130)
- Téléphone :
- 02 31 64 00 00
- Adressse :
- 20 rue Hamelin
14130 Pont-l'Évêque, France
