Maison neuve à
Cambremer
(14340) Référence :
MP2419686_1
Prix du projet : Maison avec Terrain
prix 209 000 €
- 4 pièces
- 2 chambres
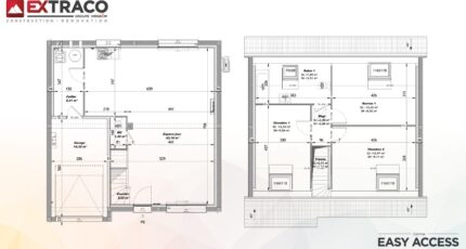
- Surface maison 81 m2
VENTE : maison de 4 pièces (81 m²) à Cambremer
MAISON 4 PIÈCES NEUVE
En vente : localisée à 21 km de la Manche, Extraco construction rénovation Pont-l'Évêque vous propose cette maison de 4 pièces de 81 m² à Cambremer (14340). Elle est composée de deux chambres, d'une cuisine et d'une salle de bains.
Le terrain de la maison s'étend sur 409 m².
Cette maison compte 2 niveaux. Elle est neuve.
Il y a l'École Primaire Victor Hugo à moins de 10 minutes à pied. Les autoroutes A13 et A132 sont accessibles à moins de 20 km. On trouve une bibliothèque, un tennis, deux commerces, une boulangerie, une boucherie-charcuterie, un bureau de poste et trois épiceries dans les environs.
Elle est à vendre pour la somme de 209 000 €.
Contactez Marion PAIN (06-67-04-73-85) pour toute information sur la maison, sur les démarches à suivre ou sur les modalités de vente.
Mentions légales
Terrain proposé par un partenaire foncier selon disponibilités et autorisation de publicité au prix de 59 000 €. Hors droit d'enregistrement et frais de notaire. Terrain + Maison proposés au prix de 209 000 € (Hors branchements et raccordements, papiers peints, peintures, revêtement de sol dans les chambres. Tarif modifiable sans préavis). Etiquette énergie : A. Différents modèles disponibles pour ce terrain. Assurances et garanties du constructeur (RC professionnelle, décennale, dommage ouvrage, garantie de remboursement de l'acompte, livraison à prix et délai convenu) : https://www.lesmaisonsextraco.fr/informations-legales/.Agence Maisons Extraco de Pont-l'Évêque (14130)
- Téléphone :
- 02 31 64 00 00
- Adressse :
- 20 rue Hamelin
14130 Pont-l'Évêque, France
