Maison neuve à
Canapville
(14800) Référence :
MP2375130_2
Prix du projet : Maison avec Terrain
prix 451 000 €
- 5 pièces
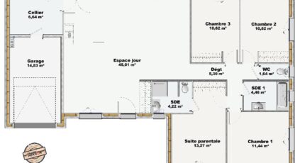
- 4 chambres
- Surface maison 113 m2
Canapville : maison de 5 pièces (113 m²) à vendre
QUARTIER RECHERCHÉ - MAISON 5 PIÈCES NEUVE
En vente : à 8 km de la Manche et à quelques kilomètres du Havre, votre agence Extraco construction rénovation Pont-l'Évêque est heureuse de vous présenter cette maison de 5 pièces de plain-pied de 113 m² et de 2 423 m² de terrain, dans un quartier prisé de Canapville (14800).
Son intérieur propose quatre chambres, une cuisine et deux salles de bains. Cette maison est neuve.
La maison se trouve dans un secteur attractif. Tous les types d'écoles sont implantés à moins de 10 minutes en voiture. Niveau transports, on trouve quatre gares à proximité. Les autoroutes A132, A13 et A29 sont accessibles à moins de 9 km. Il y a des tennis, des bibliothèques, un bowling, trois bassins de natation, un port de plaisance, des commerces, des boulangeries, des supermarchés, des poissonneries et des boucheries-charcuteries dans les environs. Enfin, 4 marchés animent les environs.
Elle est à vendre pour la somme de 451 000 €.
Prenez contact avec Marion PAIN (06-67-04-73-85) pour plus de renseignements sur la maison. Extraco construction rénovation Pont-l'Évêque est là pour vous accompagner dans toutes vos démarches.
Mentions légales
Terrain proposé par un partenaire foncier selon disponibilités et autorisation de publicité au prix de 242 000 €. Hors droit d'enregistrement et frais de notaire. Terrain + Maison proposés au prix de 209 000 € (Hors branchements et raccordements, papiers peints, peintures, revêtement de sol dans les chambres. Tarif modifiable sans préavis). Etiquette énergie : A. Différents modèles disponibles pour ce terrain. Assurances et garanties du constructeur (RC professionnelle, décennale, dommage ouvrage, garantie de remboursement de l'acompte, livraison à prix et délai convenu) : https://www.lesmaisonsextraco.fr/informations-legales/.Agence Maisons Extraco de Pont-l'Évêque (14130)
- Téléphone :
- 02 31 64 00 00
- Adressse :
- 20 rue Hamelin
14130 Pont-l'Évêque, France
