Maison neuve à
Cergy
(95000) Référence :
GBCHS51_07-0_3
Prix du projet : Maison avec Terrain
prix 410 600 €
- 6 pièces
- 5 chambres
- Surface maison 120 m2
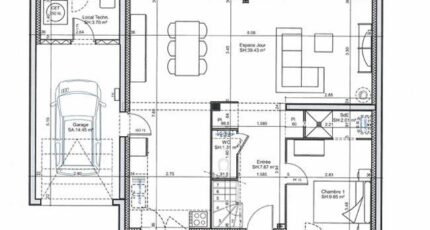
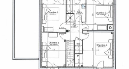
VENTE d'une maison de 6 pièces (120 m²) à Éragny
PROCHE GARE - MAISON 6 PIÈCES NEUVE
Proche du Transilien J (gare d'Éragny-Neuville, 30 min de Paris), Les Maisons Extraco Chambourcy vous présente cette maison de 6 pièces de 120 m² et de 431 m² de terrain en vente proche de la gare d'Éragny (95610).
C'est une maison de 2 niveaux. Elle est composée de cinq chambres, d'une cuisine et de deux salles de bains. La maison est neuve.
Il y a des établissements scolaires du primaire et du secondaire à moins de 10 minutes à pied. Côté transports en commun, on trouve la gare Éragny-Neuville dans un rayon de 1 km. Il y a une bibliothèque, deux tennis, un bassin de natation, des commerces, des boulangeries, trois supermarchés, des boucheries-charcuteries et un bureau de poste à quelques minutes.
Elle est proposée à l'achat pour 410 600 €.
Contactez Gilles BOREAU (01-30-65-11-55) pour obtenir de plus amples renseignements sur la maison.
Mentions légales
Terrain proposé par un partenaire foncier selon disponibilités et autorisation de publicité au prix de 190 000 €. Hors droit d'enregistrement et frais de notaire. Terrain + Maison proposés au prix de 220 600 € (Hors branchements et raccordements, papiers peints, peintures, revêtement de sol dans les chambres. Tarif modifiable sans préavis). Etiquette énergie : A. Différents modèles disponibles pour ce terrain. Assurances et garanties du constructeur (RC professionnelle, décennale, dommage ouvrage, garantie de remboursement de l'acompte, livraison à prix et délai convenu) : https://www.lesmaisonsextraco.fr/informations-legales/.Agence Maisons Extraco de Chambourcy (78240)
- Téléphone :
- 01 30 65 11 55
- Adressse :
- Boulevard de la Renaissance
78240 Chambourcy, France
