Maison neuve à
Compainville
(76440) Référence :
SE2351009_3
Prix du projet : Maison avec Terrain
prix 224 050 €
- 5 pièces
- 4 chambres
- Surface maison 92 m2
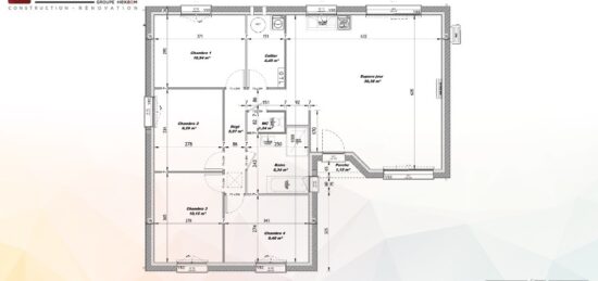
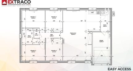
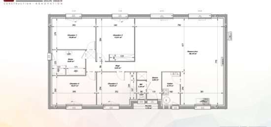
Compainville : maison F5 (92 m²) à vendre
MAISON 5 PIÈCES NEUVE
À vendre à Compainville (76440), nous vous proposons cette maison de 5 pièces de plain-pied de 92 m². Son intérieur comporte quatre chambres, une cuisine et une salle de bains.
Le terrain de la propriété s'étend sur 2 127 m².
La maison est neuve.
Il y a une école élémentaire dans le quartier. Côté transports, on trouve deux gares (Serqueux et Sommery) à moins de 10 minutes en voiture. Il y a un accès à l'autoroute A29 à 10 km.
Son prix de vente est de 224 050 €.
Contactez notre agence (Slimane ELHLOU : 06-17-96-02-17) pour obtenir de plus amples renseignements sur ce bien, sur les démarches à suivre ou sur les modalités de vente.
Mentions légales
Terrain proposé par un partenaire foncier selon disponibilités et autorisation de publicité au prix de 63 810 €. Hors droit d'enregistrement et frais de notaire. Maison proposée, avec un contrat de construction de maison individuelle, dans le cadre de la loi du 19/12/1990, au prix de 160 240 € (Hors branchements et raccordements, papiers peints, peintures, revêtement de sol dans les chambres, qui sont chiffrés dans les travaux qui restent à charge du client. Tarif modifiable sans préavis). Étiquette énergie : A. Différents modèles disponibles pour ce terrain. Assurances et garanties du constructeur comprises (RC professionnelle, décennale, dommage ouvrage).Agence Maisons Extraco de Dieppe (76200)
- Téléphone :
- 02 35 06 07 50
- Adressse :
- 78 rue de la Barre
76200 Dieppe, France
