Maison neuve à
Compainville
(76440) Référence :
SE2351042_1
Prix du projet : Maison avec Terrain
prix 205 760 €
- 5 pièces
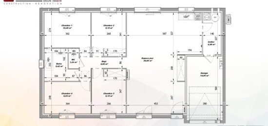
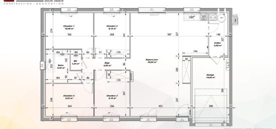
- 4 chambres
- Surface maison 95 m2
VENTE : maison de 5 pièces (95 m²) à Compainville
MAISON 5 PIÈCES NEUVE
À vendre : à Compainville (76440), nous vous proposons cette maison de 5 pièces de plain-pied de 95 m² et de 1 957 m² de terrain.
Conçue de plain-pied, elle inclut quatre chambres, une cuisine et une salle de bains. Cette maison est neuve.
Il y a une école élémentaire dans le quartier. Côté transports en commun, on trouve deux gares (Serqueux et Sommery) à moins de 10 minutes en voiture. L'autoroute A29 est accessible à 10 km.
Elle est proposée à l'achat pour 205 760 €.
N'hésitez pas à prendre contact avec notre agence (ELHLOU Slimane : 06-17-96-02-17) pour toute information sur la maison, sur les démarches à suivre ou sur les modalités de vente. Les Maisons Extraco Dieppe vous accompagne dans tous vos projets immobiliers et à toutes les étapes de votre projet.
Mentions légales
Terrain proposé par un partenaire foncier selon disponibilités et autorisation de publicité au prix de 58 700 €. Hors droit d'enregistrement et frais de notaire. Maison proposée, avec un contrat de construction de maison individuelle, dans le cadre de la loi du 19/12/1990, au prix de 147 060 € (Hors branchements et raccordements, papiers peints, peintures, revêtement de sol dans les chambres, qui sont chiffrés dans les travaux qui restent à charge du client. Tarif modifiable sans préavis). Étiquette énergie : A. Différents modèles disponibles pour ce terrain. Assurances et garanties du constructeur comprises (RC professionnelle, décennale, dommage ouvrage).Agence Maisons Extraco de Dieppe (76200)
- Téléphone :
- 02 35 06 07 50
- Adressse :
- 78 rue de la Barre
76200 Dieppe, France
