Maison neuve à
Coudray
(27150) Référence :
CG2352980_1
Prix du projet : Maison avec Terrain
prix 226 850 €
- 5 pièces
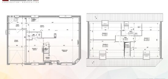
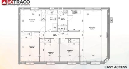
- 4 chambres
- Surface maison 95 m2
Coudray : maison F5 (95 m²) à vendre
IDÉALEMENT SITUÉE - MAISON 5 PIÈCES NEUVE
À vendre : située à quelques kilomètres de Saint-Étienne-du-Rouvray, Extraco Construction Rénovation Les Andelys vous présente, idéalement située dans Coudray (27150), cette maison de 5 pièces de plain-pied de 95 m².
Elle comporte quatre chambres, une cuisine et une salle de bains. La maison est neuve.
Le terrain du bien est de 1 300 m².
Cette maison se trouve dans un secteur recherché. Il y a l'École Maternelle Intercommunale à moins de 10 minutes à pied.
Elle est proposée à l'achat pour 226 850 €.
Contactez Carole GOITA (tél : 06-50-10-84-99) pour toute question sur la maison, sur les démarches à suivre ou sur les modalités de vente. Concrétisez vos projets immobiliers avec Extraco Construction Rénovation Les Andelys.
Mentions légales
Terrain proposé par un partenaire foncier selon disponibilités et autorisation de publicité au prix de 59 950 €. Hors droit d'enregistrement et frais de notaire. Maison proposée, avec un contrat de construction de maison individuelle, dans le cadre de la loi du 19/12/1990, au prix de 166 900 € (Hors branchements et raccordements, papiers peints, peintures, revêtement de sol dans les chambres, qui sont chiffrés dans les travaux qui restent à charge du client. Tarif modifiable sans préavis). Étiquette énergie : A. Différents modèles disponibles pour ce terrain. Assurances et garanties du constructeur comprises (RC professionnelle, décennale, dommage ouvrage).Agence Maisons Extraco de Les Andelys (27700)
- Téléphone :
- 02 32 51 77 46
- Adressse :
- 51 Avenue de la République
27700 Les Andelys, France
