Maison neuve à
Coudray
(27150) Référence :
CG2352980_3
Prix du projet : Maison avec Terrain
prix 251 850 €
- 5 pièces
- 4 chambres
- Surface maison 105 m2
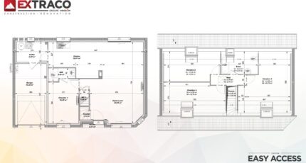
VENTE d'une maison de 5 pièces (105 m²) à Coudray
IDÉALEMENT SITUÉE - MAISON 5 PIÈCES NEUVE
En vente à 30 km de Saint-Étienne-du-Rouvray, notre agence Extraco Construction Rénovation Les Andelys est ravie de vous proposer cette maison de 5 pièces de 105 m² et de 1 300 m² de terrain idéalement située dans Coudray (27150).
Cette maison compte 2 niveaux. Son intérieur comporte quatre chambres, une cuisine et deux salles de bains. Cette maison est neuve.
La maison se trouve dans un secteur convoité. L'École Maternelle Intercommunale est implantée à moins de 10 minutes à pied.
Son prix de vente est de 251 850 €.
Contactez Carole GOITA (06-50-10-84-99) pour toute question sur la propriété, sur les démarches à suivre ou sur les modalités de vente.
Mentions légales
Terrain proposé par un partenaire foncier selon disponibilités et autorisation de publicité au prix de 59 950 €. Hors droit d'enregistrement et frais de notaire. Maison proposée, avec un contrat de construction de maison individuelle, dans le cadre de la loi du 19/12/1990, au prix de 191 900 € (Hors branchements et raccordements, papiers peints, peintures, revêtement de sol dans les chambres, qui sont chiffrés dans les travaux qui restent à charge du client. Tarif modifiable sans préavis). Étiquette énergie : A. Différents modèles disponibles pour ce terrain. Assurances et garanties du constructeur comprises (RC professionnelle, décennale, dommage ouvrage).Agence Maisons Extraco de Les Andelys (27700)
- Téléphone :
- 02 32 51 77 46
- Adressse :
- 51 Avenue de la République
27700 Les Andelys, France
