Maison neuve à
Coudray
(27150) Référence :
CG2352980_4
Prix du projet : Maison avec Terrain
prix 278 850 €
- 4 pièces
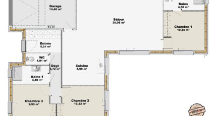
- 3 chambres
- Surface maison 94 m2
Maison F4 en structure bois (94 m²) à vendre à Coudray
IDÉALEMENT SITUÉE - MAISON 4 PIÈCES NEUVE
À vendre : située à 30 km de Saint-Étienne-du-Rouvray, nous vous proposons cette maison de 4 pièces de plain-pied de 94 m² et de 1 300 m² de terrain, idéalement située dans Coudray (27150). Elle est composée de trois chambres, d'une cuisine et de deux salles de bains.
La maison est neuve.
La maison se trouve dans un secteur convoité. Il y a l'École Maternelle Intercommunale à moins de 10 minutes à pied.
Elle est proposée à l'achat pour 278 850 €.
N'hésitez pas à prendre contact avec Carole GOITA (tél : 06-50-10-84-99) pour toute question sur la maison ou sur les démarches à suivre. Concrétisez vos projets immobiliers avec Extraco Construction Rénovation Les Andelys.
Mentions légales
Terrain proposé par un partenaire foncier selon disponibilités et autorisation de publicité au prix de 59 950 €. Hors droit d'enregistrement et frais de notaire. Maison proposée, avec un contrat de construction de maison individuelle, dans le cadre de la loi du 19/12/1990, au prix de 218 900 € (Hors branchements et raccordements, papiers peints, peintures, revêtement de sol dans les chambres, qui sont chiffrés dans les travaux qui restent à charge du client. Tarif modifiable sans préavis). Étiquette énergie : A. Différents modèles disponibles pour ce terrain. Assurances et garanties du constructeur comprises (RC professionnelle, décennale, dommage ouvrage).Agence Maisons Extraco de Les Andelys (27700)
- Téléphone :
- 02 32 51 77 46
- Adressse :
- 51 Avenue de la République
27700 Les Andelys, France
