Maison neuve à
Coudray
(27150) Référence :
CG2436866_1
Prix du projet : Maison avec Terrain
prix 228 850 €
- 5 pièces
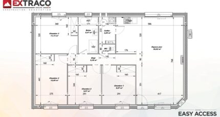
- 4 chambres
- Surface maison 95 m2
VENTE d'une maison de 5 pièces (95 m²) à Coudray
IDÉALEMENT SITUÉE - MAISON 5 PIÈCES NEUVE
À 30 km de Saint-Étienne-du-Rouvray, nous sommes heureux de vous présenter cette maison de 5 pièces de plain-pied de 95 m² et de 1 300 m² de terrain en vente, idéalement située dans Coudray (27150).
Elle inclut quatre chambres, une cuisine et une salle de bains. Cette maison est neuve.
Cette maison se situe dans un quartier recherché. Il y a l'École Maternelle Intercommunale à moins de 10 minutes à pied.
Elle est à vendre pour la somme de 228 850 €.
Prenez contact avec GOITA Carole pour obtenir de plus amples renseignements sur la maison ou sur les modalités de vente. Faites de vos projets immobiliers une réalité avec Extraco Construction Rénovation Les Andelys.
Mentions légales
Terrain proposé par un partenaire foncier selon disponibilités et autorisation de publicité au prix de 59 950 €. Hors droit d'enregistrement et frais de notaire. Terrain + Maison proposés au prix de 228 850 € (Hors branchements et raccordements, papiers peints, peintures, revêtement de sol dans les chambres. Tarif modifiable sans préavis). Etiquette énergie : A. Différents modèles disponibles pour ce terrain. Assurances et garanties du constructeur (RC professionnelle, décennale, dommage ouvrage, garantie de remboursement de l'acompte, livraison à prix et délai convenu) : https://www.lesmaisonsextraco.fr/informations-legales/.Agence Maisons Extraco de Les Andelys (27700)
- Téléphone :
- 02 32 51 77 46
- Adressse :
- 51 Avenue de la République
27700 Les Andelys, France
