Maison neuve à
Coudray
(27150) Référence :
CG2436866_4
Prix du projet : Maison avec Terrain
prix 232 850 €
- 4 pièces
- 2 chambres
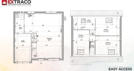
- Surface maison 81 m2
VENTE : maison de 4 pièces (81 m²) à Coudray
IDÉALEMENT SITUÉE - MAISON 4 PIÈCES NEUVE
À vendre : localisée à 30 km de Saint-Étienne-du-Rouvray, venez découvrir cette maison de 4 pièces de 81 m² idéalement située dans Coudray (27150). Son intérieur est composé de deux chambres, d'une cuisine et d'une salle de bains.
Le terrain de cette maison est de 1 300 m².
C'est une maison de 2 niveaux. Elle est neuve.
Cette maison se trouve dans un secteur recherché. Il y a l'École Maternelle Intercommunale à moins de 10 minutes à pied.
Elle est à vendre pour la somme de 232 850 €.
Prenez contact avec Carole GOITA pour toute question sur la maison, sur les modalités de vente ou sur les démarches à suivre. Extraco Construction Rénovation Les Andelys vous accompagne dans tous vos projets immobiliers et à toutes les étapes de l'achat.
Mentions légales
Terrain proposé par un partenaire foncier selon disponibilités et autorisation de publicité au prix de 59 950 €. Hors droit d'enregistrement et frais de notaire. Terrain + Maison proposés au prix de 232 850 € (Hors branchements et raccordements, papiers peints, peintures, revêtement de sol dans les chambres. Tarif modifiable sans préavis). Etiquette énergie : A. Différents modèles disponibles pour ce terrain. Assurances et garanties du constructeur (RC professionnelle, décennale, dommage ouvrage, garantie de remboursement de l'acompte, livraison à prix et délai convenu) : https://www.lesmaisonsextraco.fr/informations-legales/.Agence Maisons Extraco de Les Andelys (27700)
- Téléphone :
- 02 32 51 77 46
- Adressse :
- 51 Avenue de la République
27700 Les Andelys, France
