Maison neuve à
Courcelles-sur-Seine
(27940) Référence :
GBLAS06_02-2_4
Prix du projet : Maison avec Terrain
prix 312 200 €
- 6 pièces
- 5 chambres
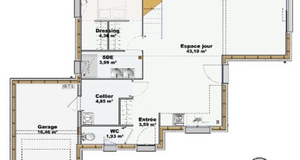
- Surface maison 114 m2
Courcelles-sur-Seine : maison F6 (114 m²) en vente
PROCHE GARE AUBEVOYE- MAISON 6 PIÈCES NEUVE
À quelques kilomètres d'Évreux, Les Maisons Extraco Les Andelys vous propose cette maison de 6 pièces de 114 m² à Courcelles-sur-Seine (27940).
Cette maison comporte 2 niveaux. Elle se divise en cinq chambres, une cuisine et deux salles de bains. La maison est neuve.
Le terrain de la propriété s'étend sur 525 m².
L'École Primaire Claude Monet est implantée à moins de 10 minutes à pied, tout comme une crèche. Niveau transports en commun, on trouve la gare Gaillon-Aubevoye à moins de 10 minutes en voiture. L'autoroute A13 est accessible à 7 km. Il y a deux commerces et une boulangerie à quelques minutes à peine.
Son prix de vente est de 312 200 €.
N'hésitez pas à prendre contact avec Gilles BOREAU (tél : 02-32-51-77-46) pour toute question sur la maison et sur les démarches à suivre. Les Maisons Extraco Les Andelys est là pour vous accompagner à toutes les étapes de votre projet.
Mentions légales
Terrain proposé par un partenaire foncier selon disponibilités et autorisation de publicité au prix de 52 000 €. Hors droit d'enregistrement et frais de notaire. Terrain + Maison proposés au prix de 312 200 € (Hors branchements et raccordements, papiers peints, peintures, revêtement de sol dans les chambres. Tarif modifiable sans préavis). Etiquette énergie : A. Différents modèles disponibles pour ce terrain. Assurances et garanties du constructeur (RC professionnelle, décennale, dommage ouvrage, garantie de remboursement de l'acompte, livraison à prix et délai convenu) : https://www.lesmaisonsextraco.fr/informations-legales/.Agence Maisons Extraco de Les Andelys (27700)
- Téléphone :
- 02 32 51 77 46
- Adressse :
- 51 Avenue de la République
27700 Les Andelys, France
