Maison neuve à
Dammartin-en-Serve
(78111) Référence :
MK2415007_4
Prix du projet : Maison avec Terrain
prix 374 000 €
- 5 pièces
- 4 chambres
- Surface maison 125 m2
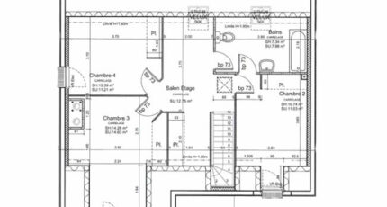
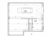
VENTE : maison de 5 pièces (125 m²) à Saint-Martin-des-Champs
IDÉALEMENT SITUÉE - MAISON 5 PIÈCES NEUVE
En vente : à quelques minutes de la gare d'Orgerus-Béhoust (Paris à 45 min avec le Transilien N), idéalement située dans Saint-Martin-des-Champs (78790), notre agence Les Maisons Extraco Chambourcy est ravie de vous présenter cette maison de 5 pièces de 125 m² et de 405 m² de terrain.
Il s'agit d'une maison de 2 niveaux. Elle propose quatre chambres, une cuisine et deux salles de bains. Cette maison est neuve.
Le bien se trouve dans un secteur convoité. Une école élémentaire y est implantée et une structure d'accueil pour les enfants en bas âge. Côté transports, il y a les gares Orgerus-Béhoust, Tacoignières-Richebourg et Garancières-La Queue à moins de 10 minutes en voiture. On trouve un tennis dans les environs.
Il est proposé à l'achat pour 374 000 €.
N'hésitez pas à prendre contact avec notre agence (KUD Morgane : 06-28-09-98-57) pour tout renseignement sur la maison ou sur les démarches à suivre.
Mentions légales
Terrain proposé par un partenaire foncier selon disponibilités et autorisation de publicité au prix de 99 000 €. Hors droit d'enregistrement et frais de notaire. Terrain + Maison proposés au prix de 374 000 € (Hors branchements et raccordements, papiers peints, peintures, revêtement de sol dans les chambres. Tarif modifiable sans préavis). Etiquette énergie : A. Différents modèles disponibles pour ce terrain. Assurances et garanties du constructeur (RC professionnelle, décennale, dommage ouvrage, garantie de remboursement de l'acompte, livraison à prix et délai convenu) : https://www.lesmaisonsextraco.fr/informations-legales/.Agence Maisons Extraco de Chambourcy (78240)
- Téléphone :
- 01 30 65 11 55
- Adressse :
- Boulevard de la Renaissance
78240 Chambourcy, France
