Maison neuve à
Dargnies
(80570) Référence :
DD_eu05_10-0_1
Prix du projet : Maison avec Terrain
prix 187 200 €
- 5 pièces
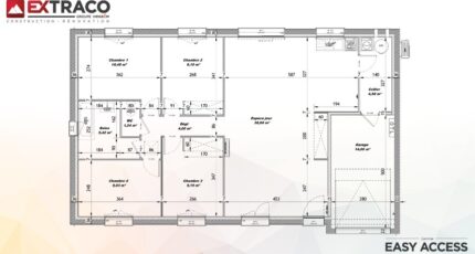
- 4 chambres
- Surface maison 92 m2
Maison T5 (92 m²) à vendre à Dargnies
MAISON 5 PIÈCES NEUVE
À 12 km de la Manche, votre agence Les Maisons Extraco Eu est heureuse de vous présenter cette maison de 5 pièces de plain-pied de 92 m² et de 1 200 m² de terrain à Dargnies (80570). Son intérieur offre quatre chambres, une cuisine et une salle de bains.
Cette maison est neuve.
Il y a l'École Primaire Paul Lenne à moins de 10 minutes à pied. Niveau transports en commun, on trouve deux gares (Longroy-Gamaches et Eu) à moins de 10 minutes en voiture. L'autoroute A28 est accessible à 14 km. Il y a une bibliothèque, un supermarché et un bureau de poste à quelques minutes du bien.
Son prix de vente est de 187 200 €.
Contactez Delphine DERULLES (06-67-13-79-40) pour obtenir de plus amples informations sur la maison ou sur les démarches à suivre. Les Maisons Extraco Eu vous accompagne dans tous vos projets immobiliers et dans toutes vos démarches.
Mentions légales
Terrain proposé par un partenaire foncier selon disponibilités et autorisation de publicité au prix de 38 000 €. Hors droit d'enregistrement et frais de notaire. Terrain + Maison proposés au prix de 187 200 € (Hors branchements et raccordements, papiers peints, peintures, revêtement de sol dans les chambres. Tarif modifiable sans préavis). Etiquette énergie : A. Différents modèles disponibles pour ce terrain. Assurances et garanties du constructeur (RC professionnelle, décennale, dommage ouvrage, garantie de remboursement de l'acompte, livraison à prix et délai convenu) : https://www.lesmaisonsextraco.fr/informations-legales/.Agence Maisons Extraco de Eu (76260)
- Téléphone :
- 02 35 82 68 79
- Adressse :
- 4 rue Abbaye
76260 Eu, France
