Maison neuve à
Dargnies
(80570) Référence :
DD_eu05_10-0_3
Prix du projet : Maison avec Terrain
prix 183 000 €
- 5 pièces
- 4 chambres
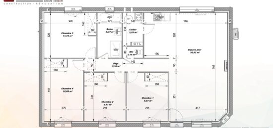
- Surface maison 85 m2
Dargnies : maison T5 (85 m²) à vendre
MAISON 5 PIÈCES NEUVE
À vendre : située à 12 km de la Manche, à Dargnies (80570), nous vous proposons cette maison de 5 pièces de 85 m² et de 1 200 m² de terrain.
C'est une maison de 2 niveaux. Elle inclut quatre chambres, une cuisine et deux salles de bains. La maison est neuve.
Il y a l'École Primaire Paul Lenne à moins de 10 minutes à pied. Niveau transports en commun, on trouve deux gares (Longroy-Gamaches et Eu) à moins de 10 minutes en voiture. Il y a un accès à l'autoroute A28 à 14 km. Il y a une bibliothèque, un supermarché et un bureau de poste à proximité.
Elle est à vendre pour la somme de 183 000 €.
Contactez Delphine DERULLES (tél : 06-67-13-79-40) pour toute question sur cette maison. Les Maisons Extraco Eu est là pour vous accompagner à toutes les étapes de votre projet.
Mentions légales
Terrain proposé par un partenaire foncier selon disponibilités et autorisation de publicité au prix de 38 000 €. Hors droit d'enregistrement et frais de notaire. Terrain + Maison proposés au prix de 183 000 € (Hors branchements et raccordements, papiers peints, peintures, revêtement de sol dans les chambres. Tarif modifiable sans préavis). Etiquette énergie : A. Différents modèles disponibles pour ce terrain. Assurances et garanties du constructeur (RC professionnelle, décennale, dommage ouvrage, garantie de remboursement de l'acompte, livraison à prix et délai convenu) : https://www.lesmaisonsextraco.fr/informations-legales/.Agence Maisons Extraco de Eu (76260)
- Téléphone :
- 02 35 82 68 79
- Adressse :
- 4 rue Abbaye
76260 Eu, France
