Maison neuve à
Écos
(27630) Référence :
GBLAS06_04-3_1
Prix du projet : Maison avec Terrain
prix 199 700 €
- 4 pièces
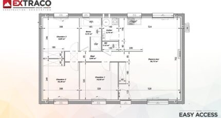
- 3 chambres
- Surface maison 80 m2
VENTE : maison de 4 pièces (80 m²) à Écos
IDÉALEMENT SITUÉE - MAISON 4 PIÈCES NEUVE
À vendre : située à 18 km de Mantes-la-Jolie, nous vous présentons cette maison de 4 pièces de plain-pied de 80 m² et de 400 m² de terrain, idéalement située dans Écos (27630). Son intérieur est composé de trois chambres, d'une cuisine et d'une salle de bains.
Cette maison est neuve.
Cette maison se situe dans un quartier attractif. On trouve l'École Primaire Ecos à moins de 10 minutes à pied. L'autoroute A13 et la nationale N13 sont accessibles à moins de 17 km. Il y a un tennis, deux boulangeries et une épicerie à quelques minutes.
Elle est proposée à l'achat pour 199 700 €.
Contactez Gilles BOREAU (tél : 02-32-51-77-46) pour toute question sur la maison.
Mentions légales
Terrain proposé par un partenaire foncier selon disponibilités et autorisation de publicité au prix de 66 000 €. Hors droit d'enregistrement et frais de notaire. Terrain + Maison proposés au prix de 199 700 € (Hors branchements et raccordements, papiers peints, peintures, revêtement de sol dans les chambres. Tarif modifiable sans préavis). Etiquette énergie : A. Différents modèles disponibles pour ce terrain. Assurances et garanties du constructeur (RC professionnelle, décennale, dommage ouvrage, garantie de remboursement de l'acompte, livraison à prix et délai convenu) : https://www.lesmaisonsextraco.fr/informations-legales/.Agence Maisons Extraco de Les Andelys (27700)
- Téléphone :
- 02 32 51 77 46
- Adressse :
- 51 Avenue de la République
27700 Les Andelys, France
