Maison neuve à
Ellecourt
(76390) Référence :
SE2418976_1
Prix du projet : Maison avec Terrain
prix 176 250 €
- 4 pièces
- 2 chambres
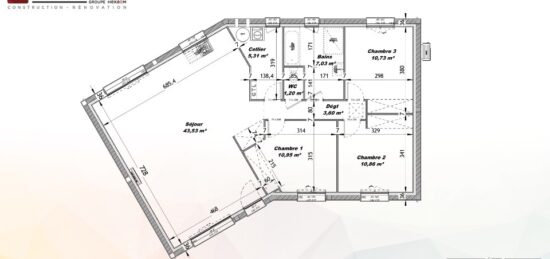
- Surface maison 81 m2
Maison de 4 pièces (81 m²) en vente à Ellecourt
IDÉALEMENT SITUÉE - MAISON 4 PIÈCES NEUVE
À 45 km de la Manche, Les Maisons Extraco Dieppe vous présente à vendre, idéalement située dans Ellecourt (76390), cette maison de 4 pièces de 81 m² et de 1 373 m² de terrain.
Cette maison compte 2 niveaux. Son intérieur offre deux chambres, une cuisine et une salle de bains. La maison est neuve.
Cette maison se trouve dans un secteur prisé. Plusieurs écoles (maternelle, élémentaire, primaire et collège) sont implantées à moins de 10 minutes en voiture, tout comme une structure d'accueil pour la petite enfance à moins de 10 minutes à pied. Niveau transports, il y a la gare Aumale à moins de 10 minutes en voiture. L'autoroute A29 est accessible à 4 km. On trouve des bibliothèques, quatre tennis, un bassin de natation, quatre supermarchés, des commerces, des boulangeries, des épiceries et trois bureaux de poste à quelques minutes. Ne manquez pas le marché Place des Marchés chaque samedi matin.
Elle est à vendre pour la somme de 176 250 €.
N'hésitez pas à prendre contact avec notre agence (Slimane ELHLOU : 06-17-96-02-17) pour tout renseignement sur le bien ou sur les modalités de vente. Les Maisons Extraco Dieppe vous accompagne dans tous vos projets immobiliers et dans toutes vos démarches.
Mentions légales
Terrain proposé par un partenaire foncier selon disponibilités et autorisation de publicité au prix de 33 000 €. Hors droit d'enregistrement et frais de notaire. Terrain + Maison proposés au prix de 176 250 € (Hors branchements et raccordements, papiers peints, peintures, revêtement de sol dans les chambres. Tarif modifiable sans préavis). Etiquette énergie : A. Différents modèles disponibles pour ce terrain. Assurances et garanties du constructeur (RC professionnelle, décennale, dommage ouvrage, garantie de remboursement de l'acompte, livraison à prix et délai convenu) : https://www.lesmaisonsextraco.fr/informations-legales/.Agence Maisons Extraco de Dieppe (76200)
- Téléphone :
- 02 35 06 07 50
- Adressse :
- 78 rue de la Barre
76200 Dieppe, France
