Maison neuve à
Épaignes
(27260) Référence :
CG2412328_2
Prix du projet : Maison avec Terrain
prix 181 000 €
- 3 pièces
- 2 chambres
- Surface maison 65 m2
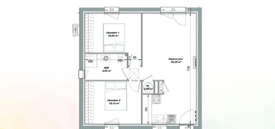
VENTE d'une maison T3 (65 m²) à Épaignes
IDÉALEMENT SITUÉE - MAISON 3 PIÈCES NEUVE
En vente : à 19 km de la Manche, Les Maisons Extraco Pont-Audemer vous présente cette maison de 3 pièces de plain-pied de 65 m² idéalement située dans Épaignes (27260). Son intérieur propose deux chambres, une cuisine et une salle de bains.
Le terrain du bien est de 46 000 m².
La maison est neuve.
Ce bien est situé dans un secteur convoité. L'École Primaire Michel Hocquard est implantée à moins de 10 minutes à pied. Il y a un accès à l'autoroute A13 à 8 km. On trouve un tennis, trois commerces, une boulangerie, un bureau de poste et deux épiceries dans les environs.
Il est à vendre pour la somme de 181 000 €.
Contactez notre agence (Cécilia GARCIA : 06-28-09-94-28) pour tout renseignement sur la maison, sur les démarches à suivre et sur les modalités de vente. Concrétisez vos projets immobiliers avec Les Maisons Extraco Pont-Audemer.
Mentions légales
Terrain proposé par un partenaire foncier selon disponibilités et autorisation de publicité au prix de 46 000 €. Hors droit d'enregistrement et frais de notaire. Terrain + Maison proposés au prix de 181 000 € (Hors branchements et raccordements, papiers peints, peintures, revêtement de sol dans les chambres. Tarif modifiable sans préavis). Etiquette énergie : A. Différents modèles disponibles pour ce terrain. Assurances et garanties du constructeur (RC professionnelle, décennale, dommage ouvrage, garantie de remboursement de l'acompte, livraison à prix et délai convenu) : https://www.lesmaisonsextraco.fr/informations-legales/.Agence Maisons Extraco de Pont-Audemer (27500)
- Téléphone :
- 02 32 41 95 72
- Adressse :
- 50 rue de la République
27500 Pont-Audemer, France
