Maison neuve à
Évreux
(27000) Référence :
OS2418165_4
Prix du projet : Maison avec Terrain
prix 237 900 €
- 5 pièces
- 4 chambres
- Surface maison 92 m2
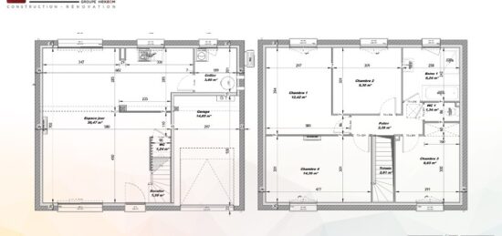
VENTE d'une maison T5 (92 m²) à Évreux
IDÉALEMENT SITUÉE - MAISON 5 PIÈCES NEUVE
En vente idéalement située dans Évreux (27000), nous sommes ravis de vous présenter cette maison de 5 pièces de plain-pied de 92 m² et de 500 m² de terrain. Conçue de plain-pied, elle se divise en quatre chambres, une cuisine et une salle de bains.
La maison est neuve.
Ce bien se trouve dans un secteur recherché. Il y a plusieurs établissements scolaires (maternelle, élémentaire, primaire et collège) à moins de 10 minutes à pied, tout comme deux crèches. Niveau transports, on trouve la gare Évreux Normandie juste à côté. Les nationales N13 et N154 sont accessibles à moins de 4 km. Il y a une bibliothèque, un bowling, des commerces, des boulangeries, un supermarché, un bureau de poste et des épiceries dans les environs. 2 marchés animent le quartier.
Son prix de vente est de 237 900 €.
Contactez Oumayma SONMEZ (06-68-92-00-86) pour obtenir de plus amples renseignements sur la maison. Les Maisons Extraco Gravigny est là pour vous accompagner à toutes les étapes de l'achat.
Mentions légales
Terrain proposé par un partenaire foncier selon disponibilités et autorisation de publicité au prix de 85 000 €. Hors droit d'enregistrement et frais de notaire. Terrain + Maison proposés au prix de 152 900 € (Hors branchements et raccordements, papiers peints, peintures, revêtement de sol dans les chambres. Tarif modifiable sans préavis). Etiquette énergie : A. Différents modèles disponibles pour ce terrain. Assurances et garanties du constructeur (RC professionnelle, décennale, dommage ouvrage, garantie de remboursement de l'acompte, livraison à prix et délai convenu) : https://www.lesmaisonsextraco.fr/informations-legales/.Agence Maisons Extraco de Gravigny (27930)
- Téléphone :
- 02 32 31 20 44
- Adressse :
- 165 Avenue Aristide Briand
27930 Gravigny, France
