Maison neuve à
Fesques
(76270) Référence :
SE2418968_1
Prix du projet : Maison avec Terrain
prix 188 250 €
- 4 pièces
- 3 chambres
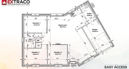
- Surface maison 85 m2
Maison F4 (85 m²) en vente à Fesques
IDÉALEMENT SITUÉE - MAISON 4 PIÈCES NEUVE
En vente : située à 33 km de la Manche, nous vous présentons, idéalement située dans Fesques (76270), cette maison de 4 pièces de plain-pied de 85 m² et de 1 238 m² de terrain. Son intérieur est composé de trois chambres, d'une cuisine et d'une salle de bains.
Cette maison est neuve.
La maison se trouve dans un secteur prisé. Une école maternelle y est implantée. Les autoroutes A28 et A29 sont accessibles à moins de 4 km.
Son prix de vente est de 188 250 €.
Contactez Slimane ELHLOU (tél : 06-17-96-02-17) pour toute question sur la maison, sur les modalités de vente ou sur les démarches à suivre. Les Maisons Extraco Dieppe est là pour vous accompagner dans tous vos projets immobiliers.
Mentions légales
Terrain proposé par un partenaire foncier selon disponibilités et autorisation de publicité au prix de 45 000 €. Hors droit d'enregistrement et frais de notaire. Terrain + Maison proposés au prix de 143 250 € (Hors branchements et raccordements, papiers peints, peintures, revêtement de sol dans les chambres. Tarif modifiable sans préavis). Etiquette énergie : A. Différents modèles disponibles pour ce terrain. Assurances et garanties du constructeur (RC professionnelle, décennale, dommage ouvrage, garantie de remboursement de l'acompte, livraison à prix et délai convenu) : https://www.lesmaisonsextraco.fr/informations-legales/.Agence Maisons Extraco de Dieppe (76200)
- Téléphone :
- 02 35 06 07 50
- Adressse :
- 78 rue de la Barre
76200 Dieppe, France
