Maison neuve à
Fesques
(76270) Référence :
SE2418968_3
Prix du projet : Maison avec Terrain
prix 155 250 €
- 3 pièces
- 2 chambres
- Surface maison 65 m2
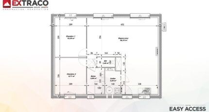
Maison F3 (65 m²) en vente à Fesques
IDÉALEMENT SITUÉE - MAISON 3 PIÈCES NEUVE
En vente : à 33 km de la Manche, idéalement située dans Fesques (76270), notre agence Les Maisons Extraco Dieppe est ravie de vous présenter cette maison de 3 pièces de plain-pied de 65 m². Conçue de plain-pied, elle comporte deux chambres, une cuisine et une salle de bains.
Le terrain de cette maison est de 1 238 m².
La maison est neuve.
La propriété est située dans un quartier prisé. On y trouve une école maternelle. Les autoroutes A28 et A29 sont accessibles à moins de 4 km.
Elle est à vendre pour la somme de 155 250 €.
Contactez Slimane ELHLOU (06-17-96-02-17) pour toute information sur la maison. Les Maisons Extraco Dieppe est là pour vous accompagner dans tous vos projets immobiliers.
Mentions légales
Terrain proposé par un partenaire foncier selon disponibilités et autorisation de publicité au prix de 45 000 €. Hors droit d'enregistrement et frais de notaire. Terrain + Maison proposés au prix de 155 250 € (Hors branchements et raccordements, papiers peints, peintures, revêtement de sol dans les chambres. Tarif modifiable sans préavis). Etiquette énergie : A. Différents modèles disponibles pour ce terrain. Assurances et garanties du constructeur (RC professionnelle, décennale, dommage ouvrage, garantie de remboursement de l'acompte, livraison à prix et délai convenu) : https://www.lesmaisonsextraco.fr/informations-legales/.Agence Maisons Extraco de Dieppe (76200)
- Téléphone :
- 02 35 06 07 50
- Adressse :
- 78 rue de la Barre
76200 Dieppe, France
