Maison neuve à
Fesques
(76270) Référence :
SE2447075_1
Prix du projet : Maison avec Terrain
prix 192 950 €
- 5 pièces
- 4 chambres
- Surface maison 105 m2
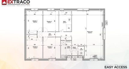
Fesques : maison de 5 pièces (105 m²) en vente
IDÉALEMENT SITUÉE - MAISON 5 PIÈCES NEUVE
À 33 km de la Manche, nous vous proposons cette maison de 5 pièces de plain-pied de 105 m² idéalement située dans Fesques (76270). Conçue de plain-pied, elle est composée de quatre chambres, d'une cuisine et d'une salle de bains.
Le terrain de la propriété est de 1 238 m².
Cette maison est neuve.
La maison se situe dans un quartier recherché. Une école maternelle y est implantée.
Son prix de vente est de 192 950 €.
N'hésitez pas à prendre contact avec notre agence Slimane ELHLOU pour obtenir de plus amples renseignements sur la maison ou sur les modalités de vente. Faites de vos projets immobiliers une réalité avec Les Maisons Extraco Dieppe.
Mentions légales
Terrain proposé par un partenaire foncier selon disponibilités et autorisation de publicité au prix de 45 000 €. Hors droit d'enregistrement et frais de notaire. Terrain + Maison proposés au prix de 192 950 € (Hors branchements et raccordements, papiers peints, peintures, revêtement de sol dans les chambres. Tarif modifiable sans préavis). Etiquette énergie : A. Différents modèles disponibles pour ce terrain. Assurances et garanties du constructeur (RC professionnelle, décennale, dommage ouvrage, garantie de remboursement de l'acompte, livraison à prix et délai convenu) : https://www.lesmaisonsextraco.fr/informations-legales/.Agence Maisons Extraco de Dieppe (76200)
- Téléphone :
- 02 35 06 07 50
- Adressse :
- 78 rue de la Barre
76200 Dieppe, France
