Maison neuve à
Fierville-les-Parcs
(14130) Référence :
AC235046948_1
Prix du projet : Maison avec Terrain
prix 299 900 €
- 4 pièces
- 3 chambres
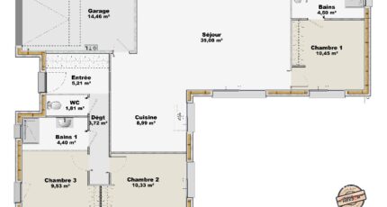
- Surface maison 94 m2
VENTE d'une maison de 4 pièces (94 m²) à Fierville-les-Parcs
IDÉALEMENT SITUÉE - MAISON 4 PIÈCES NEUVE
En vente : idéalement située dans Fierville-les-Parcs (14130), nous vous proposons cette maison de 4 pièces de plain-pied de 94 m² et de 988 m² de terrain.
Conçue de plain-pied, elle dispose de trois chambres, d'une cuisine et de deux salles de bains. La maison est neuve.
La maison se situe dans un quartier recherché. Des établissements scolaires du primaire et du secondaire se trouvent à moins de 10 minutes en voiture. Niveau transports en commun, il y a la gare Pont-l'Évêque dans les environs. Les autoroutes A13 et A132 sont accessibles à moins de 6 km. On trouve des tennis, deux bibliothèques, des boulangeries, des commerces, quatre supermarchés, quatre boucheries-charcuteries et des épiceries à proximité de la maison. Enfin, le marché Place Foch anime les environs chaque lundi matin.
Elle est proposée à l'achat pour 299 900 €.
Contactez Angélique CUVILLIERS (tél : 07-63-32-12-06) pour obtenir de plus amples renseignements sur la maison ou sur les modalités de vente.
EXTRACO Construction Rénovation Pont-l'Évêque vous accompagne dans toutes vos démarches et à toutes les étapes de votre projet.
Mentions légales
Terrain proposé par un partenaire foncier selon disponibilités et autorisation de publicité au prix de 92 000 €. Hors droit d'enregistrement et frais de notaire. Maison proposée, avec un contrat de construction de maison individuelle, dans le cadre de la loi du 19/12/1990, au prix de 207 900 € (Hors branchements et raccordements, papiers peints, peintures, revêtement de sol dans les chambres, qui sont chiffrés dans les travaux qui restent à charge du client. Tarif modifiable sans préavis). Étiquette énergie : A. Différents modèles disponibles pour ce terrain. Assurances et garanties du constructeur comprises (RC professionnelle, décennale, dommage ouvrage).Agence Maisons Extraco de Pont-l'Évêque (14130)
- Téléphone :
- 02 31 64 00 00
- Adressse :
- 20 rue Hamelin
14130 Pont-l'Évêque, France
