Maison neuve à
Forges-les-Eaux
(76440) Référence :
SE2418224_3
Prix du projet : Maison avec Terrain
prix 195 300 €
- 3 pièces
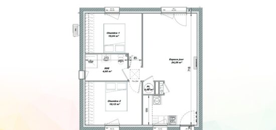
- 2 chambres
- Surface maison 80 m2
Forges-les-Eaux : maison F3 (80 m²) en vente
IDÉALEMENT SITUÉE - MAISON 3 PIÈCES NEUVE
En vente : laissez vous charmer par cette maison de 3 pièces de plain-pied de 80 m² idéalement située dans Forges-les-Eaux (76440).
Elle inclut deux chambres, une cuisine et une salle de bains. Cette maison est neuve.
Le terrain de la propriété s'étend sur 485 m².
La maison se trouve dans un quartier prisé. L'École Primaire Privée Sacré-Coeur, l'École Maternelle Marguerite Couturier, l'École Élémentaire Eugène Anne, le Collège Saint-Exupéry et le Lycée Polyvalent Edouard Delamare Deboutteville sont implantés à moins de 10 minutes à pied. Côté transports, on trouve deux gares (Serqueux et Sommery) à moins de 10 minutes en voiture. Les autoroutes A28 et A29 sont accessibles à moins de 15 km. Il y a un tennis, une bibliothèque, deux supermarchés, des commerces, des boulangeries, deux épiceries et trois boucheries-charcuteries dans les environs.
Elle est à vendre pour la somme de 195 300 €.
N'hésitez pas à prendre contact avec Slimane ELHLOU (06-17-96-02-17) pour obtenir de plus amples renseignements sur la maison ou sur les modalités de vente. Les Maisons Extraco Dieppe est là pour vous accompagner dans toutes vos démarches.
Mentions légales
Terrain proposé par un partenaire foncier selon disponibilités et autorisation de publicité au prix de 49 500 €. Hors droit d'enregistrement et frais de notaire. Terrain + Maison proposés au prix de 195 300 € (Hors branchements et raccordements, papiers peints, peintures, revêtement de sol dans les chambres. Tarif modifiable sans préavis). Etiquette énergie : A. Différents modèles disponibles pour ce terrain. Assurances et garanties du constructeur (RC professionnelle, décennale, dommage ouvrage, garantie de remboursement de l'acompte, livraison à prix et délai convenu) : https://www.lesmaisonsextraco.fr/informations-legales/.Agence Maisons Extraco de Dieppe (76200)
- Téléphone :
- 02 35 06 07 50
- Adressse :
- 78 rue de la Barre
76200 Dieppe, France
