Maison neuve à
Forges-les-Eaux
(76440) Référence :
SE2447166_2
Prix du projet : Maison avec Terrain
prix 222 025 €
- 4 pièces
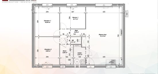
- 3 chambres
- Surface maison 98 m2
Forges-les-Eaux : maison F4 (98 m²) à vendre
IDÉALEMENT SITUÉE - MAISON 4 PIÈCES NEUVE
À vendre : nous sommes heureux de vous présenter cette maison de 4 pièces de plain-pied de 98 m², idéalement située dans Forges-les-Eaux (76440). Son intérieur offre trois chambres, une cuisine et une salle de bains.
Le terrain du bien s'étend sur 463 m².
La maison est neuve.
La maison est située dans un quartier convoité. On trouve l'École Primaire Privée Sacré-Coeur, l'École Maternelle Marguerite Couturier, l'École Élémentaire Eugène Anne, le Collège Saint-Exupéry et le Lycée Polyvalent Edouard Delamare Deboutteville à moins de 10 minutes à pied. Niveau transports, il y a deux gares (Serqueux et Sommery) à moins de 10 minutes en voiture. On trouve un tennis, une bibliothèque, des commerces, un bureau de poste, une supérette, deux épiceries et deux boucheries charcuteries à quelques minutes.
Son prix de vente est de 222 025 €.
N'hésitez pas à prendre contact avec Slimane ELHLOU pour tout renseignement sur la maison, sur les démarches à suivre ou sur les modalités de vente. Les Maisons Extraco Dieppe est là pour vous accompagner à toutes les étapes de votre projet.
Mentions légales
Terrain proposé par un partenaire foncier selon disponibilités et autorisation de publicité au prix de 49 500 €. Hors droit d'enregistrement et frais de notaire. Terrain + Maison proposés au prix de 222 025 € (Hors branchements et raccordements, papiers peints, peintures, revêtement de sol dans les chambres. Tarif modifiable sans préavis). Etiquette énergie : A. Différents modèles disponibles pour ce terrain. Assurances et garanties du constructeur (RC professionnelle, décennale, dommage ouvrage, garantie de remboursement de l'acompte, livraison à prix et délai convenu) : https://www.lesmaisonsextraco.fr/informations-legales/.Agence Maisons Extraco de Dieppe (76200)
- Téléphone :
- 02 35 06 07 50
- Adressse :
- 78 rue de la Barre
76200 Dieppe, France
