Maison neuve à
Forges-les-Eaux
(76440) Référence :
SE2447191_1
Prix du projet : Maison avec Terrain
prix 191 000 €
- 4 pièces
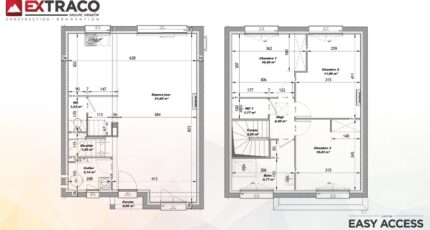
- 3 chambres
- Surface maison 88 m2
Forges-les-Eaux : maison de 4 pièces (88 m²) à vendre
IDÉALEMENT SITUÉE - MAISON 4 PIÈCES NEUVE
Nous sommes ravis de vous présenter cette maison de 4 pièces de 88 m² à vendre idéalement située dans Forges-les-Eaux (76440). Elle inclut trois chambres, une cuisine et une salle de bains.
Le terrain de la maison est de 462 m².
Cette maison compte 2 niveaux. Elle est neuve.
Ce bien se situe dans un quartier prisé. Il y a l'École Primaire Privée Sacré-Coeur, l'École Maternelle Marguerite Couturier, l'École Élémentaire Eugène Anne, le Collège Saint-Exupéry et le Lycée Polyvalent Edouard Delamare Deboutteville à moins de 10 minutes à pied. Niveau transports en commun, on trouve les gares Serqueux et Sommery à moins de 10 minutes en voiture. Il y a un tennis, une bibliothèque, des commerces, un bureau de poste, une supérette, deux épiceries et deux boucheries-charcuteries à quelques minutes du logement.
Son prix de vente est de 191 000 €.
Contactez Slimane ELHLOU pour tout renseignement sur la maison. Les Maisons Extraco Dieppe est là pour vous accompagner à toutes les étapes de votre projet.
Mentions légales
Terrain proposé par un partenaire foncier selon disponibilités et autorisation de publicité au prix de 40 500 €. Hors droit d'enregistrement et frais de notaire. Terrain + Maison proposés au prix de 191 000 € (Hors branchements et raccordements, papiers peints, peintures, revêtement de sol dans les chambres. Tarif modifiable sans préavis). Etiquette énergie : A. Différents modèles disponibles pour ce terrain. Assurances et garanties du constructeur (RC professionnelle, décennale, dommage ouvrage, garantie de remboursement de l'acompte, livraison à prix et délai convenu) : https://www.lesmaisonsextraco.fr/informations-legales/.Agence Maisons Extraco de Dieppe (76200)
- Téléphone :
- 02 35 06 07 50
- Adressse :
- 78 rue de la Barre
76200 Dieppe, France
