Maison neuve à
Formentin
(14340) Référence :
AC2349008S48_1
Prix du projet : Maison avec Terrain
prix 294 700 €
- 4 pièces
- 3 chambres
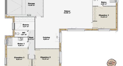
- Surface maison 94 m2
OSSATURE BOIS
Maison F4 (94 m²) à vendre à Formentin
EMPLACEMENT PRIVILÉGIÉ - MAISON 4 PIÈCES NEUVE
En vente bénéficiant d'un emplacement privilégié dans Formentin (14340), EXTRACO Construction Rénovation Pont-l'Évêque vous propose cette maison de 4 pièces de plain-pied de 94 m² et de 1 458 m² de terrain.
Son intérieur compte trois chambres, une cuisine et deux salles de bains. La maison est neuve.
La maison est située dans un quartier convoité. Des écoles de tous niveaux se trouvent à moins de 10 minutes en voiture. Côté transports, il y a les gares Le Grand Jardin et Lisieux dans les alentours. Il y a un accès à l'autoroute A13 à 8 km. On trouve des tennis, des bibliothèques, un bassin de natation, un bowling, des boulangeries, des commerces, quatre supermarchés, deux poissonneries et des boucheries-charcuteries à proximité du logement. Ne manquez pas le marché Place de la République chaque samedi.
Son prix de vente est de 294 700 €.
Contactez Angélique CUVILLIERS (07-63-32-12-06) pour plus de renseignements sur la propriété.
EXTRACO Construction Rénovation Pont-l'Évêque est là pour vous accompagner dans toutes vos démarches.
Mentions légales
Terrain proposé par un partenaire foncier selon disponibilités et autorisation de publicité au prix de 90 000 €. Hors droit d'enregistrement et frais de notaire. Maison proposée, avec un contrat de construction de maison individuelle, dans le cadre de la loi du 19/12/1990, au prix de 204 700 € (Hors branchements et raccordements, papiers peints, peintures, revêtement de sol dans les chambres, qui sont chiffrés dans les travaux qui restent à charge du client. Tarif modifiable sans préavis). Étiquette énergie : A. Différents modèles disponibles pour ce terrain. Assurances et garanties du constructeur comprises (RC professionnelle, décennale, dommage ouvrage).Agence Maisons Extraco de Pont-l'Évêque (14130)
- Téléphone :
- 02 31 64 00 00
- Adressse :
- 20 rue Hamelin
14130 Pont-l'Évêque, France
