Maison neuve à
Fort-Moville
(27210) Référence :
CG2412319_3
Prix du projet : Maison avec Terrain
prix 148 000 €
- 3 pièces
- 2 chambres
- Surface maison 50 m2
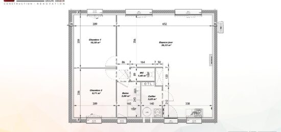
Maison de 3 pièces (50 m²) à vendre à Fort-Moville
IDÉALEMENT SITUÉE - MAISON 3 PIÈCES NEUVE
À vendre à 13 km de la Manche et à deux pas du Havre, notre agence Les Maisons Extraco Pont-Audemer est heureuse de vous proposer cette maison de 3 pièces de plain-pied de 50 m² et de 800 m² de terrain, idéalement située dans Fort-Moville (27210).
Elle offre deux chambres, une cuisine et une salle de bains. Cette maison est neuve.
Cette maison est située dans un quartier recherché. Des écoles de tous niveaux (de la maternelle au lycée) sont implantées à moins de 10 minutes en voiture, tout comme deux structures d'accueil pour la petite enfance à moins de 10 minutes à pied. L'autoroute A13 est accessible à 4 km. Il y a des tennis, une bibliothèque, un bassin de natation, des commerces, des boulangeries, des supermarchés, deux supérettes et quatre bureaux de poste à proximité du bien. Le marché Rue de la République anime les environs.
Elle est à vendre pour la somme de 148 000 €.
Contactez notre constructeur (Cécilia GARCIA : 06-28-09-94-28) pour toute question sur la maison, sur les démarches à suivre ou sur les modalités de vente.
Mentions légales
Terrain proposé par un partenaire foncier selon disponibilités et autorisation de publicité au prix de 40 000 €. Hors droit d'enregistrement et frais de notaire. Terrain + Maison proposés au prix de 108 000 € (Hors branchements et raccordements, papiers peints, peintures, revêtement de sol dans les chambres. Tarif modifiable sans préavis). Etiquette énergie : A. Différents modèles disponibles pour ce terrain. Assurances et garanties du constructeur (RC professionnelle, décennale, dommage ouvrage, garantie de remboursement de l'acompte, livraison à prix et délai convenu) : https://www.lesmaisonsextraco.fr/informations-legales/.Agence Maisons Extraco de Pont-Audemer (27500)
- Téléphone :
- 02 32 41 95 72
- Adressse :
- 50 rue de la République
27500 Pont-Audemer, France
