Maison neuve à
Foucarmont
(76340) Référence :
SE2379509_1
Prix du projet : Maison avec Terrain
prix 141 700 €
- 3 pièces
- 2 chambres
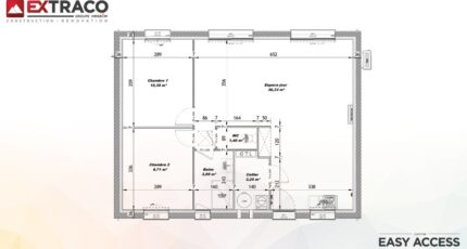
- Surface maison 65 m2
VENTE : maison T3 (65 m²) à Foucarmont
IDÉALEMENT SITUÉE - MAISON 3 PIÈCES NEUVE
En vente : à 32 km de la Manche, votre agence Les Maisons Extraco Dieppe est ravie de vous présenter cette maison de 3 pièces de plain-pied de 65 m² et de 789 m² de terrain, idéalement située dans Foucarmont (76340).
Conçue de plain-pied, elle comporte deux chambres, une cuisine et une salle de bains. Cette maison est neuve.
Cette maison se situe dans un quartier convoité. On y trouve des écoles maternelles et élémentaires. L'autoroute A28 est accessible à 4 km. Il y a un tennis, deux boulangeries, deux commerces, un supermarché, un bureau de poste et deux boucheries-charcuteries dans les environs.
Son prix de vente est de 141 700 €.
Prenez contact avec notre constructeur (Slimane ELHLOU : 06-17-96-02-17) pour plus d'informations sur la maison, sur les démarches à suivre ou sur les modalités de vente. Concrétisez vos projets immobiliers avec Les Maisons Extraco Dieppe.
Mentions légales
Terrain proposé par un partenaire foncier selon disponibilités et autorisation de publicité au prix de 29 174 €. Hors droit d'enregistrement et frais de notaire. Terrain + Maison proposés au prix de 112 526 € (Hors branchements et raccordements, papiers peints, peintures, revêtement de sol dans les chambres. Tarif modifiable sans préavis). Etiquette énergie : A. Différents modèles disponibles pour ce terrain. Assurances et garanties du constructeur (RC professionnelle, décennale, dommage ouvrage, garantie de remboursement de l'acompte, livraison à prix et délai convenu) : https://www.lesmaisonsextraco.fr/informations-legales/.Agence Maisons Extraco de Dieppe (76200)
- Téléphone :
- 02 35 06 07 50
- Adressse :
- 78 rue de la Barre
76200 Dieppe, France
