Maison neuve à
Foucarmont
(76340) Référence :
SE2418228_1
Prix du projet : Maison avec Terrain
prix 139 450 €
- 3 pièces
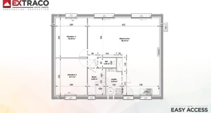
- 2 chambres
- Surface maison 65 m2
Foucarmont : maison T3 (65 m²) en vente
IDÉALEMENT SITUÉE - MAISON 3 PIÈCES NEUVE
En vente : localisée à 32 km de la Manche, votre agence Les Maisons Extraco Dieppe est ravie de vous proposer cette maison de 3 pièces de plain-pied de 65 m² et de 789 m² de terrain, idéalement située dans Foucarmont (76340). Elle est composée de deux chambres, d'une cuisine et d'une salle de bains.
La maison est neuve.
Cette maison se situe dans un quartier recherché. Des écoles primaires y sont implantées. Il y a un accès à l'autoroute A28 à 4 km. Il y a un tennis, deux boulangeries, deux commerces, un supermarché, deux boucheries-charcuteries et un bureau de poste à quelques minutes à peine.
Elle est à vendre pour la somme de 139 450 €.
Contactez notre constructeur (Slimane ELHLOU : 06-17-96-02-17) pour obtenir de plus amples informations sur la maison. Donnez vie à vos projets immobiliers avec Les Maisons Extraco Dieppe.
Mentions légales
Terrain proposé par un partenaire foncier selon disponibilités et autorisation de publicité au prix de 29 174 €. Hors droit d'enregistrement et frais de notaire. Terrain + Maison proposés au prix de 110 276 € (Hors branchements et raccordements, papiers peints, peintures, revêtement de sol dans les chambres. Tarif modifiable sans préavis). Etiquette énergie : A. Différents modèles disponibles pour ce terrain. Assurances et garanties du constructeur (RC professionnelle, décennale, dommage ouvrage, garantie de remboursement de l'acompte, livraison à prix et délai convenu) : https://www.lesmaisonsextraco.fr/informations-legales/.Agence Maisons Extraco de Dieppe (76200)
- Téléphone :
- 02 35 06 07 50
- Adressse :
- 78 rue de la Barre
76200 Dieppe, France
