Maison neuve à
Foucarmont
(76340) Référence :
SE2418228_2
Prix du projet : Maison avec Terrain
prix 179 700 €
- 4 pièces
- 3 chambres
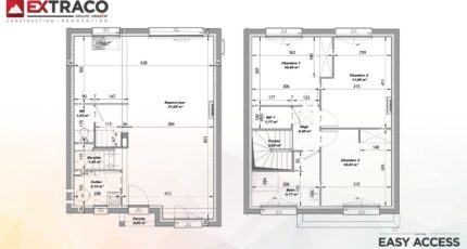
- Surface maison 88 m2
VENTE : maison F4 (88 m²) à Foucarmont
IDÉALEMENT SITUÉE - MAISON 4 PIÈCES NEUVE
À vendre à 32 km de la Manche, idéalement située dans Foucarmont (76340), nous vous présentons cette maison de 4 pièces de 88 m² et de 789 m² de terrain.
Cette maison compte 2 niveaux. Elle offre trois chambres, une cuisine et une salle de bains. La maison est neuve.
La maison se situe dans un secteur convoité. Des établissements scolaires maternelles et élémentaires y sont implantés. On trouve un accès à l'autoroute A28 à 4 km. On trouve un tennis, deux boulangeries, deux commerces, un supermarché, deux boucheries-charcuteries et un bureau de poste à proximité.
Son prix de vente est de 179 700 €.
Contactez Slimane ELHLOU (tél : 06-17-96-02-17) pour tout renseignement sur la maison, sur les modalités de vente ou sur les démarches à suivre. Les Maisons Extraco Dieppe est là pour vous accompagner à toutes les étapes de votre projet.
Mentions légales
Terrain proposé par un partenaire foncier selon disponibilités et autorisation de publicité au prix de 29 174 €. Hors droit d'enregistrement et frais de notaire. Terrain + Maison proposés au prix de 150 526 € (Hors branchements et raccordements, papiers peints, peintures, revêtement de sol dans les chambres. Tarif modifiable sans préavis). Etiquette énergie : A. Différents modèles disponibles pour ce terrain. Assurances et garanties du constructeur (RC professionnelle, décennale, dommage ouvrage, garantie de remboursement de l'acompte, livraison à prix et délai convenu) : https://www.lesmaisonsextraco.fr/informations-legales/.Agence Maisons Extraco de Dieppe (76200)
- Téléphone :
- 02 35 06 07 50
- Adressse :
- 78 rue de la Barre
76200 Dieppe, France
