Maison neuve à
Foulbec
(27210) Référence :
JP2373082_1
Prix du projet : Maison avec Terrain
prix 187 000 €
- 3 pièces
- 2 chambres
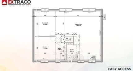
- Surface maison 65 m2
Maison de 3 pièces (65 m²) en vente à Foulbec
MAISON 3 PIÈCES NEUVE - PROCHE DU HAVRE
À 6 km de la Manche et à quelques kilomètres du Havre, nous sommes heureux de vous proposer cette maison de 3 pièces de plain-pied de 65 m² et de 1 031 m² de terrain à vendre à Foulbec (27210).
Son intérieur offre deux chambres, une cuisine et une salle de bains. Cette maison est neuve.
Une école élémentaire est implantée dans le quartier. L'autoroute A13 et la nationale N182 sont accessibles à moins de 8 km.
Elle est à vendre pour la somme de 187 000 €.
Contactez Juliette PETIT (06-66-70-24-56) pour obtenir de plus amples renseignements sur la maison. Concrétisez vos projets immobiliers avec Les Maisons Extraco Pont-Audemer.
Mentions légales
Terrain proposé par un partenaire foncier selon disponibilités et autorisation de publicité au prix de 54 500 €. Hors droit d'enregistrement et frais de notaire. Terrain + Maison proposés au prix de 132 500 € (Hors branchements et raccordements, papiers peints, peintures, revêtement de sol dans les chambres. Tarif modifiable sans préavis). Etiquette énergie : A. Différents modèles disponibles pour ce terrain. Assurances et garanties du constructeur (RC professionnelle, décennale, dommage ouvrage, garantie de remboursement de l'acompte, livraison à prix et délai convenu) : https://www.lesmaisonsextraco.fr/informations-legales/.Agence Maisons Extraco de Pont-Audemer (27500)
- Téléphone :
- 02 32 41 95 72
- Adressse :
- 50 rue de la République
27500 Pont-Audemer, France
