Maison neuve à
Foulbec
(27210) Référence :
JP2418535_3
Prix du projet : Maison avec Terrain
prix 224 000 €
- 5 pièces
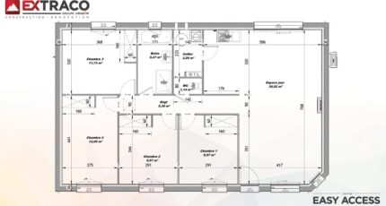
- 4 chambres
- Surface maison 95 m2
Maison de 5 pièces (95 m²) à vendre à Foulbec
MAISON 5 PIÈCES NEUVE - PROCHE DU HAVRE
À vendre : à 6 km de la Manche et à 24 km du Havre, laissez vous charmer par cette maison de 5 pièces de plain-pied de 95 m² à Foulbec (27210). Conçue de plain-pied, elle inclut quatre chambres, une cuisine et une salle de bains.
Le terrain de la maison s'étend sur 1 353 m².
Cette maison est neuve.
Il y a une école élémentaire dans le quartier. L'autoroute A13 et la nationale N182 sont accessibles à moins de 8 km.
Elle est proposée à l'achat pour 224 000 €.
Prenez contact avec Juliette PETIT (06-66-70-24-56) pour tout renseignement sur la propriété. Concrétisez vos projets immobiliers avec Les Maisons Extraco Pont-Audemer.
Mentions légales
Terrain proposé par un partenaire foncier selon disponibilités et autorisation de publicité au prix de 61 500 €. Hors droit d'enregistrement et frais de notaire. Terrain + Maison proposés au prix de 224 000 € (Hors branchements et raccordements, papiers peints, peintures, revêtement de sol dans les chambres. Tarif modifiable sans préavis). Etiquette énergie : A. Différents modèles disponibles pour ce terrain. Assurances et garanties du constructeur (RC professionnelle, décennale, dommage ouvrage, garantie de remboursement de l'acompte, livraison à prix et délai convenu) : https://www.lesmaisonsextraco.fr/informations-legales/.Agence Maisons Extraco de Pont-Audemer (27500)
- Téléphone :
- 02 32 41 95 72
- Adressse :
- 50 rue de la République
27500 Pont-Audemer, France
